Siete già iscritti? /

Bellano (LC) – Ex Collegio Giglio

L’idea progettuale è quella di dar vita a un’esperienza di housing sociale che risponda a diversi livelli di necessità della popolazione: lavoratori precari, giovani coppie e famiglie in difficoltà, che non possono accedere al mercato privato degli affitti o dell’acquisto di un’abitazione, ma non hanno i requisiti per usufruire dell’edilizia sociale pubblica, accanto a situazioni di marginalità più accentuata e condizioni di fragilità o rischio povertà, e persone che hanno bisogno di integrarsi dopo esperienze di riabilitazione, cura e recupero.

indirizzo:
Strada Provinciale 66 - 23822 Bellano (LC)

Dettagli

Tipologie immobile
Edificio storico, Altre tipologie, Edificio cielo/terra
Funzioni ammesse
Residenziale, RSA/Senior Housing, Sport, tempo libero, eventi, Student House
Superficie territoriale (m²)
3.500 m²
SLP Totale (m²)
Anno di costruzione
1890
Stato manutentivo
Da valorizzare
Stato occupazionale
Libero

Il progetto vede il recupero di una struttura storica, che per tanti anni si è occupata di accoglienza creando occasioni di benessere, valorizzandone la collocazione in un contesto di montagna circondato dalla natura, ma nel contempo servito da mezzi pubblici e strade facilmente e velocemente percorribili. Sarebbe, inoltre, un’occasione di “rinascita”, di riqualifica sociale ed economica, per un paese ancora abitato e dalle preziose potenzialità naturalistiche. Si pensa ad una ristrutturazione che presti attenzione agli aspetti di integrazione ambientale paesaggistica, che sia appetibile anche per giovani famiglie, attratte da un abitare ecologico e in parte condiviso con altri nuclei, promuovendo relazioni tra i vicini per la gestione della vita di tutti i giorni nell’intento di ottimizzare le risorse, ma anche alla ricerca di una qualità di vita diversa da quella dei grandi centri cittadini. Si pensa al recupero di un tempo per fare e stare insieme, al di fuori dei ritmi frenetici che l’individualismo spesso impone. La struttura, per l’ampia metratura, per il fatto di essere suddivisa in 4 piani con due diversi accessi, ben si sposa con la possibilità di sviluppare convivenze e sinergie, anche con spazi comuni, così da incrociare bisogni e risorse in un’ottica costruttiva e non assistenziale. Si pensa ad alloggi studiati e costruiti per essere efficienti ed economici, oltre che rispettosi dell’ambiente. Un ambiente che a sua volta potrebbe essere fonte energetica.

Bellano è un Comune di 3.490 abitanti della provincia di Lecco, in Lombardia, situato sulla sponda orientale del Lago di Como. Confina a nord con il comune di Dervio, a est con Valvarrone e Casargo, a sud con Taceno, Parlasco, e Perledo, mentre a ovest è interamente bagnato dal Lago di Como.

Il Comune dispone di una stazione ferroviaria posta sulla linea Tirano-Lecco. Bellano dispone inoltre di un servizio di ormeggio servito dalle imbarcazioni della navigazione pubblica sul Lago di Como.

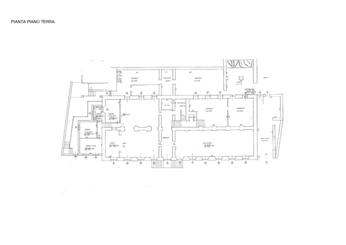
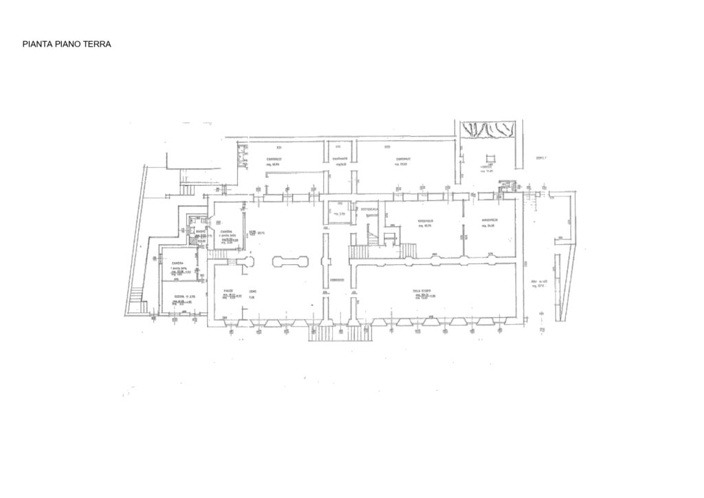
piano terra
875 m²
primo piano
875 m²
secondo piano
875 m²
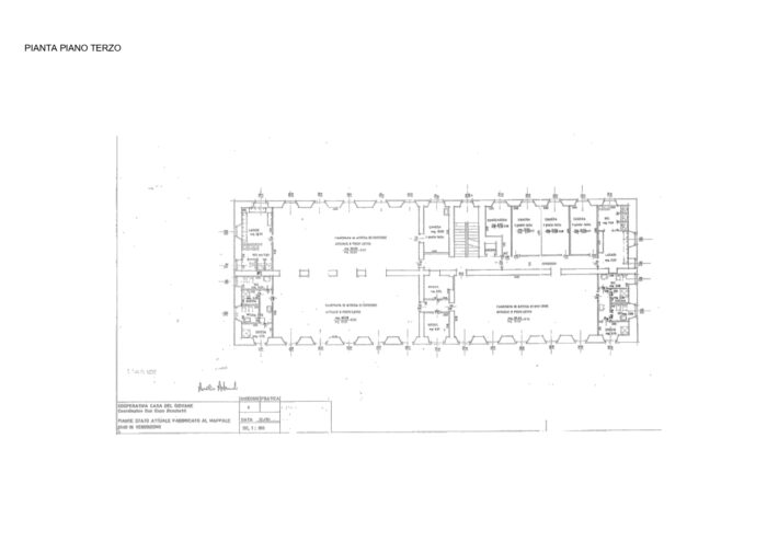
terzo piano
875 m²

L’idea progettuale è quella di dar vita a un’esperienza di housing sociale che risponda a diversi livelli di necessità della popolazione: lavoratori precari, giovani coppie e famiglie in difficoltà, che non possono accedere al mercato privato degli affitti o dell’acquisto di un’abitazione, ma non hanno i requisiti per usufruire dell’edilizia sociale pubblica, accanto a situazioni di marginalità più accentuata e condizioni di fragilità o rischio povertà, e persone che hanno bisogno di integrarsi dopo esperienze di riabilitazione, cura e recupero.

Questo immobile fa parte del progetto:

MIPIM 2021

Procedure

Vendita della piena proprietà con bando pubblico

Strada Provinciale 66 - 23822 Bellano (LC)

Contatto

ICE - Italian Trade Agency

Richiedi informazioni

Pianta principale

Bellano (LC) – Ex Collegio Giglio Pianta principale