Siete già iscritti? /

Laino Castello (CS) – Borgo Antico di Laino Castello

Il borgo di Laino Castello è un piccolo comune situato nella parte nord occidentale della Calabria, quasi a ridosso dei confini regionali, nell’area del Parco Nazionale del Pollino, in provincia di Cosenza. Il suo territorio è in gran parte interessato da stratificazioni storiche millenarie, tra le più antiche della regione e del paese. Altrettanto importante è il contesto paesaggistico ed ambientale in cui il borgo è posto: esso risulta essere infatti di rilevante interesse naturalistico, paesaggistico oltre che culturale all’interno degli strumenti di pianificazione del Parco Nazionale del Pollino.

indirizzo:
Laino Castello Vecchio, 1 - 87015 Laino Castello (CS)

Dettagli

Tipologie immobile
Edificio storico, Edificio cielo/terra
Funzioni ammesse
Altre funzioni, Residenziale, Turistico ricettivo
Superficie territoriale (m²)
36.809 m²
SLP Totale (m²)
Contratti e vincoli

Il borgo antico è attualmente libero da contratti.

Anno di costruzione
il borgo nasce in epoca medievale gli ultimi interventi realizzati risalgono al 1800
Stato manutentivo
Mediocre - Da valorizzare
Stato occupazionale
Libero
Profilo di rischio

Il borgo antico vede 6 unità immobiliari restaurate, mentre la maggior parte degli immobili antichi di pregio necessitano di una completa ristrutturazione. Il 5% delle consistenze si trova in buone condizioni, mentre la restante porzione degli immobili sono in scadenti condizioni di manutenzione. Tutte le murature sono in pietrame di cava. Le case sono disposte nel borgo secondo un ordine rispondente alle esigenze contingenti delle varie epoche in cui sono state realizzate, elemento tipico dell’urbanistica medievale. Tutte le unità immobiliari risultano disabitate, incluse quelle ristrutturate nel recente passato. Il borgo è sottoposto a vincolo storico paesaggistico in quanto centro storico all’interno del Parco Nazionale del Pollino; la valorizzazione del sito medioevale dovrà essere approvata dalle autorità preposte del competente Ministero volte a tutelarlo.

Laino Castello (769 abitanti) è situato nella provincia di Cosenza, all’interno del Parco Nazionale del Pollino. Il borgo è circondato da numerose città storiche e note località turistiche quali Maratea, Praia a Mare e Scalea. Si trova a 545 metri di altitudine ed è raggiungibile agevolmente grazie all’autostrada A-3, che dista 5 km circa (7 minuti in auto). L’aeroporto internazionale di Lamezia Terme offre collegamenti giornalieri con le principali città italiane e con numerose località europee e dista 165 km (95 minuti in auto), mentre quello di Salerno-Costa d’Amalfi si trova a 145 km (90 minuti in auto). Le città di Cosenza e Salerno distano rispettivamente 102 e 159 km dalla zona (60 e 90 minuti in auto). La stazione ferroviaria più vicina è quella di Praja-Ajeta-Tortora, sulla tratta regionale Cosenza-Paola, che dista 55 km dal borgo (60 minuti in auto).

Proprietà comune di Laino Castello

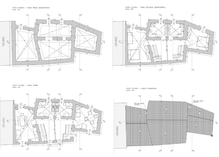
Planimetrie intervento n. 2

Intervento edilizio completato

Area esterna

Proprietà comune di Laino Castello

 

default

default

 

 

Intero corpo proprietà pubblica Borgo Antico
14900 m²
P.R.G. Zonizzazione centro storico

Il borgo di Laino Castello è un piccolo comune situato nella parte nord occidentale della Calabria, quasi a ridosso dei confini regionali, nell’area del Parco Nazionale del Pollino, in provincia di Cosenza. Il suo territorio è in gran parte interessato da stratificazioni storiche millenarie, tra le più antiche della regione e del paese. Altrettanto importante è il contesto paesaggistico ed ambientale in cui il borgo è posto: esso risulta essere infatti di rilevante interesse naturalistico, paesaggistico oltre che culturale all’interno degli strumenti di pianificazione del Parco Nazionale del Pollino.

Questo immobile fa parte del progetto:

MIPIM 2025

Interesse culturale

www.investinitalyrealestate.com mette in contatto domanda e offerta. L'alienazione o concessione onerosa del bene potrà avvenire solo previa conclusione di procedura verifica interesse culturale e/o autorizzazione ministeriale D.Lgs 42 2004 alla Proprietà.

Procedure

Concessione di valorizzazione con confronto competitivo

Laino Castello Vecchio, 1 - 87015 Laino Castello (CS)

Contatto

ICE - Italian Trade Agency

Richiedi informazioni

Pianta principale

Laino Castello (CS) – Borgo Antico di Laino Castello Pianta principale