Siete già iscritti? /

Borno (BS) – Ex Sanatorio di Croce di Salven

Il Compendio immobiliare, noto come “Ex Sanatorio di Croce di Salven”, situato nel comune di Borno, in provincia di Brescia, è circondato da un'ampia pineta, in uno scenario paesaggistico suggestivo e di rara bellezza. L’immobile, costruito nel 1933 - 1934, ed utilizzato come sanatorio infantile fino al 1964, è attualmente in stato di abbandono ed inagibile, sommerso dal bosco e dal verde circostante.

indirizzo:
Via Croce di Salven - 25052 Borno (BS)

Dettagli

Tipologie immobile
Altre tipologie
Funzioni ammesse
Altre funzioni
Superficie territoriale (m²)
56.400 m²
SLP Totale (m²)
Contratti e vincoli

Stima di vendita: €2.294.000 euro

Anno di costruzione
1933
Stato manutentivo
Da valorizzare
Stato occupazionale
Libero
Profilo di rischio

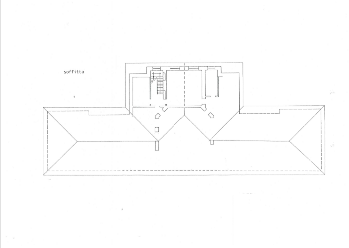
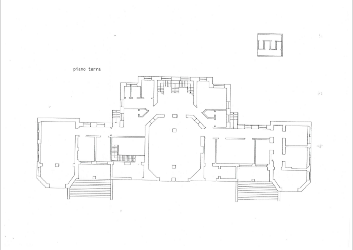
Il compendio immobiliare, utilizzato come sanatorio infantile fino al 1964 e poi come colonia estiva dal 1972 al 1982, è da allora in completo stato di abbandono, e si trova in pessime condizioni di manutenzione, fortemente degradato e non agibile. La struttura è articolata in una pluralità di fabbricati aventi diverse funzioni: portineria, padiglione femminile, padiglione maschile, padiglione infantile, ex cinematografo, magazzino. L’edificio principale si sviluppa su tre piani fuori terra ed un livello seminterrato, con una superficie coperta di 2.600 m² circa e un’area esterna di oltre 56.000 m².

La struttura portante verticale è realizzata in muratura di pietrame, mentre i solai sono in cemento armato. Il tetto ha orditura in legno e copertura in tegole tipo “marsigliese”: le strutture portanti presentano importanti cedimenti strutturali, che hanno determinato infiltrazioni d’acqua nelle strutture sottostanti. L’edificio, con conformazione planimetrica rettangolare, si caratterizza lungo i lati corti da facciate ad andamento poliedrico regolare e lesene sulla facciata nord. Il prospetto sud è caratterizzato da ampie finestre affacciate sui corridoi esterni, a loro volta protetti da finestre munite di tapparelle. Sono presenti due accessi principali, con due ampie scale in marmo e una serie di pilastri rettangolari di sostegno ai corridoi esterni.

Il compendio è situato in zona extraurbana di Borno (2.436 abitanti), comune della media Valle Camonica, ad un’altitudine compresa fra 605 e 2.500 metri s.l.m. L’immobile si trova a 5 km circa dall’abitato urbano, in posizione panoramica e soleggiata sulla vallata da cui si ammirano scenari paesaggistici suggestivi. La zona rappresenta una meta turistica molto apprezzata sia durante la stagione estiva che invernale. L’accesso si trova lungo la SP-5 con l’ingresso carrabile e pedonale, che insiste sulla proprietà dell’ASL Valle Camonica, in quanto né il Consorzio Antitubercolare di Cremona, né la Provincia di Cremona hanno mai adempiuto alla costruzione della strada di accesso esclusiva. La zona dista 70 km circa da Brescia e 67 km dal casello “Ospitaletto” dell’Autostrada A-4 (Torino-Trieste). L’aeroporto internazionale Orio al Serio di Bergamo dista invece 75 km.

Seminterrato
496 m²
Piano Rialzato
620 m²
Piano Primo
620 m²
Piano Secondo
620 m²
Area Pertinenziale
247 m²

Il Compendio immobiliare, noto come “Ex Sanatorio di Croce di Salven”, situato nel comune di Borno, in provincia di Brescia, è circondato da un'ampia pineta, in uno scenario paesaggistico suggestivo e di rara bellezza. L’immobile, costruito nel 1933 - 1934, ed utilizzato come sanatorio infantile fino al 1964, è attualmente in stato di abbandono ed inagibile, sommerso dal bosco e dal verde circostante.

Procedure

Vedi dettagli contatto per manifestazioni di interesse e simili

Via Croce di Salven - 25052 Borno (BS)

Contatto

ICE - Italian Trade Agency

Richiedi informazioni

Pianta principale

Borno (BS) – Ex Sanatorio di Croce di Salven Pianta principale