Siete già iscritti? /

Calenzano (FI)- Torre di Baroncoli

Complesso immobiliare di grande pregio storico-artistico noto come "Torre di Baroncoli" situato nel comune di Calenzano, in provincia di Firenze, in posizione collinare panoramica, alle pendici del Monte Morello. La villa fortilizia, immersa in un contesto rurale di oliveti e boschi, è stata realizzata tra il 1523 e il 1527 e venne attribuita a Baccio d’Agnolo. L'immobile, costituito da una torre di 38 metri ed altri fabbricati di notevole pregio, conserva una struttura rinascimentale articolata attorno a un cortile porticato, e risulta vincolata dal 1913 per il suo valore storico-artistico.

Dettagli

Tipologie immobile
Edificio storico, Villa, Castello, Faro/Torre, Terreno
Funzioni ammesse
Residenziale, RSA/Senior Housing, SPA/Benessere, Turistico ricettivo
Superficie territoriale (m²)
76.425 m²
SLP Totale (m²)
Stato occupazionale
Libero
Profilo di rischio

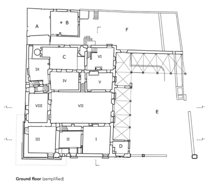
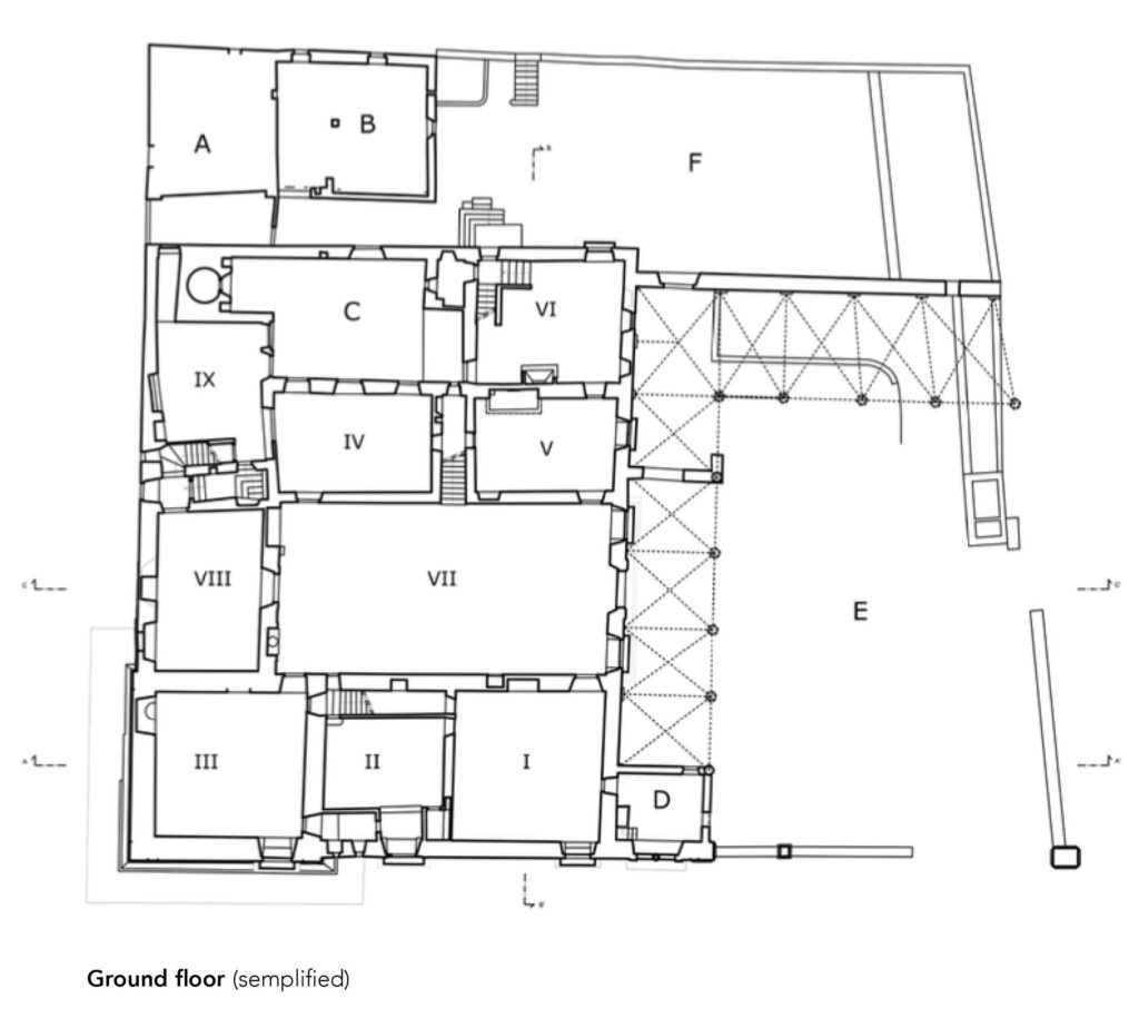
Il complesso noto come “Torre di Baroncoli” si compone di una torre quadrangolare indipendente articolata su otto piani fuori terra e di un insieme di edifici distribuiti su tre livelli, con porzioni collabenti e altre potenzialmente recuperabili. L’impianto, originariamente strutturato attorno a un cortile con loggiato voltato su colonne toscane, mostra notevole flessibilità distributiva e possibilità di molteplici accessi indipendenti. L’immobile che sviluppa una superficie coperta di 2.485 m² è circondato da terreni agricoli che si estendono per oltre 7 ettari; il compendio è attualmente inutilizzato e in parte inagibile, e ricade in area collinare a prevalente uso agricolo. Le caratteristiche strutturali e distributive consentono ipotesi di valorizzazione del compendio, con trasformazione in residenza, struttura ricettiva o spazio multifunzionale.

Il compendio noto come “Torre di Baroncoli” è situato in zona extraurbana di Calenzano (18.061 abitanti), comune compreso nella Città Metropolitana di Firenze, alle pendici del Monte Morello, a 3,5 km circa dall’abitato urbano (7 minuti in auto). La zona risulta facilmente accessibile e ben collegata: l’innesto autostradale A1/A11 dista circa 3 km, l’aeroporto di Firenze “Amerigo Vespucci” circa 8 km, mentre il centro storico di Firenze si trova a 15 km circa dall’immobile (30 minuti in auto). La stazione ferroviaria di Calenzano, sulla tratta regionale Pistoia-Firenze-Arezzo, dista 6 km circa dalla zona (10 minuti in auto). Nelle vicinanze si trovano Calenzano Alto, il Castello di Legri e l’Abbazia di Monte Morello.

Seminterrato
580 m²
Terra
730 m²
Mezzanino
240 m²
Primo
475 m²
Secondo
85 m²
Terzo
85 m²
Quarto
85 m²
Quinto
85 m²
Sesto
120 m²
Brochure- Eng
Brochure- Ita
Dati catastali

Complesso immobiliare di grande pregio storico-artistico noto come "Torre di Baroncoli" situato nel comune di Calenzano, in provincia di Firenze, in posizione collinare panoramica, alle pendici del Monte Morello. La villa fortilizia, immersa in un contesto rurale di oliveti e boschi, è stata realizzata tra il 1523 e il 1527 e venne attribuita a Baccio d’Agnolo. L'immobile, costituito da una torre di 38 metri ed altri fabbricati di notevole pregio, conserva una struttura rinascimentale articolata attorno a un cortile porticato, e risulta vincolata dal 1913 per il suo valore storico-artistico.

Interesse culturale

www.investinitalyrealestate.com mette in contatto domanda e offerta. L'alienazione o concessione onerosa del bene potrà avvenire solo previa conclusione di procedura verifica interesse culturale e/o autorizzazione ministeriale D.Lgs 42 2004 alla Proprietà.

Procedure

Vendita della piena proprietà con trattativa privata

Calenzano (FI)

Contatto

ICE - Italian Trade Agency

Richiedi informazioni

Pianta principale

Calenzano (FI)- Torre di Baroncoli Pianta principale