Siete già iscritti? /

CALTANISSETTA (CL)- Corso Umberto I n. 126 (Ex filiale della Banca D’Italia)

Il compendio immobiliare, ex filiale della Banca d'Italia, è ubicato nel centro storico di Caltanissetta, in un contesto urbano di pregio. L'immobile, edificato negli anni '70, è destinato ad istituto di credito, abitazioni, uffici e magazzini. L'edificio, in virtù della sua localizzazione centrale, può essere valorizzato con funzioni residenziali e direzionali.

indirizzo:
Corso Umberto I, 126 - 93100 Caltanissetta (CL)

Dettagli

Tipologie immobile
Edificio cielo/terra
Funzioni ammesse
Direzionale, Residenziale
Superficie territoriale (m²)
977 m²
SLP Totale (m²)
Anno di costruzione
1969
Stato manutentivo
Da valorizzare
Stato occupazionale
Libero
Profilo di rischio

L’immobile è costituito da un unico edificio articolato su cinque piani fuori terra (compreso il piano copertura) e due livelli interrati; confina a Nord con lo stabile del Banco di Sicilia, ad est con un cortile condominiale con Palazzo Moncada e Banco di Sicilia, a sud con Via Giacomo Matteotti ed a ovest con Corso Umberto I.

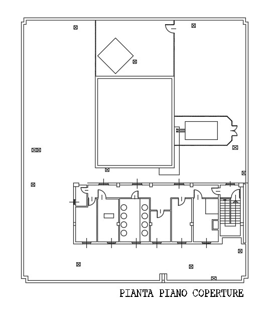
L’immobile è adibito in parte ad uffici (piani interrati, rialzato e primo) con ingresso principale da Corso Umberto I, 126, ed in parte ad alloggi di servizio (piano secondo e terzo) con ingresso da Via G. Matteotti, 4. Al livello di copertura sono presenti tre cantine ed i locali tecnologici.

E’ presente un ingresso carrabile su Corso Umberto I, che conduce al garage al piano interrato, utilizzato come carico/scarico; gli uffici hanno due accessi secondari, uno raggiungibile tramite corridoio esterno, verso l’ingresso carrabile e l’altro da Via G. Matteotti, accanto al civico 4; quello invece di Via G. Matteotti, 2 conduce ai locali tecnici al primo piano interrato.

L’edificio è realizzato con fondazioni su plinti isolati collegati da travi e poggianti su pali trivellati, una struttura portante in calcestruzzo di cemento armato, solai del tipo misto in cotto e cemento armato, muri di contenimento in calcestruzzo di cemento armato.

Il compendio è situato nel centro storico di Caltanissetta, in Sicilia. L’immobile si trova lungo Corso Umberto I°, angolo Via G. Matteotti, a breve distanza da Corso Vittorio Emanuele con la Fontana del Tritone, in una zona ben servita dai mezzi pubblici e parcheggi. Nelle vicinanze si trovano le sedi delle istituzioni pubbliche (Comune, Prefettura, l’Agenzia delle Entrate) ed i più importanti edifici monumentali della città, quali il Teatro “Regina Margherita” e la Cattedrale di Santa Maria La Nova. La zona è accessibile attraverso l’asse viario Viale della Regione – Viale Conte Testasecca a partire dalla Strada Statale 640, che raccorda la città con l’autostrada A-19, con il casello “Caltanissetta” a 15 km. L’immobile dista 650 metri dalla Stazione Ferroviaria “Caltanissetta Centrale”, che garantisce collegamenti con le città di Catania (a 110 km) ed Agrigento (a 55 km). Gli aeroporti internazionali di Catania e di Palermo distano rispettivamente 107 e 160 km dall’immobile.

 

Piano secondo interrato
mq 97,82
Piano primo interrato
mq 211,44
Piano rialzato
mq 777,05
Piano Primo
mq 572,59
Piano secondo
mq 644,84
Piano terzo
mq 667,74
Piano copertura
mq 79,51

Il compendio immobiliare, ex filiale della Banca d'Italia, è ubicato nel centro storico di Caltanissetta, in un contesto urbano di pregio. L'immobile, edificato negli anni '70, è destinato ad istituto di credito, abitazioni, uffici e magazzini. L'edificio, in virtù della sua localizzazione centrale, può essere valorizzato con funzioni residenziali e direzionali.

Corso Umberto I, 126 - 93100 Caltanissetta (CL)

Contatto

ICE - Italian Trade Agency

Richiedi informazioni

Pianta principale

CALTANISSETTA (CL)- Corso Umberto I n. 126 (Ex filiale della Banca D’Italia) Pianta principale