Siete già iscritti? /

Roma (RM) – Casa del Fascio Settecamini

L'ex Casa del Fascio è situata in località Settecamini, nel quadrante est della città di Roma, in prossimità del Grande Raccordo Anulare. L'immobile è stato realizzato negli anni ’30, per ospitare la Casa del Fascio, ad uso dei cittadini che hanno partecipato alla bonifica delle aree periferiche romane, con destinazione prima residenziale, poi a servizi e infine rifunzionalizzato negli anni a Casa del Popolo.

indirizzo:
Via di Casal Bianco, snc - 00131 Roma (RM)

Dettagli

Tipologie immobile
Edificio cielo/terra
Funzioni ammesse
Altre funzioni, Commerciale, Direzionale, Logistico/produttivo, Residenziale, RSA/Senior Housing, Sport, tempo libero, eventi, Student House, Turistico ricettivo
Superficie territoriale (m²)
1.316 m²
SLP Totale (m²)
Contratti e vincoli

Nessun contratto. L’edificio è libero fatta eccezione per una porzione dell’area di pertinenza su via di Casal Bianco
occupata senza titolo da un chiosco per la vendita di fiori per il quale è stata attivata azione di sfratto.

Anno di costruzione
1930
Stato manutentivo
Mediocre - Da valorizzare
Stato occupazionale
Libero
Profilo di rischio

L’immobile, da cielo a terra, è stato dichiarato di interesse storico artistico particolarmente rilevante ai sensi dell’art. 10, co. 3, lett. D del Decreto legislativo 42/2024.

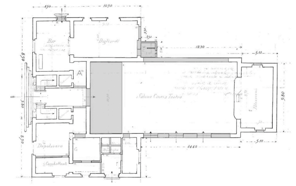
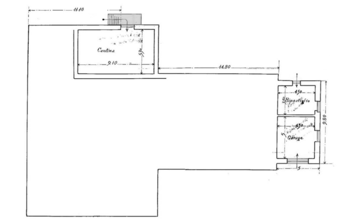
L’edificio è realizzato su un’area territoriale di 1.316 m², di cui 795 m² scoperti, è articolato su due livelli fuori terra, con ulteriori superfici al piano seminterrato ed interrato, caratterizzandosi per la giustapposizione, in pianta, di due volumi regolari, ortogonali tra loro. Il corpo longitudinale ospita l’atrio di ingresso, spazi di distribuzione e il salone/teatro, mentre nel corpo trasversale si trovano alcuni vani secondari. L’immobile è realizzato con struttura in muratura portante, solai costituiti da travi e tavelloni, con copertura a doppia falda con capriate, travetti in legno, tavelline e tegole in laterizio. Le facciate esterne sono rivestite con intonaco civile e pittura per esterni. Si accede all’edificio da tre ingressi posti al piano terra.

L’immobile necessita di interventi di ristrutturazione e restauro, per permettere l’insediamento di funzioni turistico-ricettive, sociali e culturali. Il recupero edilizio e urbano dell’edificio è di particolare interesse nel contesto di trasformazione e rigenerazione urbana già in atto del quartiere.

L’immobile è situato in zona suburbana di Roma Capitale, nel quadrante est della città, in località Settecamini, compresa nel IV Municipio. La zona si sviluppa parallelamente alla via Tiburtina (SS-5), importante strada consolare che collega Tivoli con la zona centrale della città. L’immobile è situato di fronte a Piazza S. Maria dell’Olivo, spazio pubblico di grande importanza nel quartiere, in un contesto prevalentemente residenziale e in un ambito territoriale caratterizzato dalla presenza di numerose attività industriali e terziarie, lungo su un asse strategico di collegamento tra la nuova stazione dell’alta velocità “Roma Tiburtina” e i siti archeologici di Villa Adriana e Villa d’Este (comune di Tivoli). La zona, inserita nel Masterplan di riqualificazione degli spazi pubblici “Programma 15 Progetti per 15 Municipi per la Città dei 15 minuti”, è servita da importanti arterie di comunicazione, quali l’autostrada A-24, con discreta dotazione di mezzi pubblici di superficie che raggiungono il centro città in 30-40 minuti. L’immobile dista circa 20 km dall’aeroporto internazionale di “Roma Ciampino” e 13 km dalla stazione ferroviaria “Roma Tiburtina”, che garantisce collegamenti con treni alta velocità.

piano terra
555 m²
piano primo
298 m²
piano seminterrato
106 m²

L'ex Casa del Fascio è situata in località Settecamini, nel quadrante est della città di Roma, in prossimità del Grande Raccordo Anulare. L'immobile è stato realizzato negli anni ’30, per ospitare la Casa del Fascio, ad uso dei cittadini che hanno partecipato alla bonifica delle aree periferiche romane, con destinazione prima residenziale, poi a servizi e infine rifunzionalizzato negli anni a Casa del Popolo.

Questo immobile fa parte del progetto:

Reiventing Cities - Progetto C40

Via di Casal Bianco, snc - 00131 Roma (RM)

Contatto

ICE - Italian Trade Agency

Richiedi informazioni

Pianta principale

Roma (RM) – Casa del Fascio Settecamini Pianta principale