Siete già iscritti? /

Collegno (TO) – Complesso in Via Torino

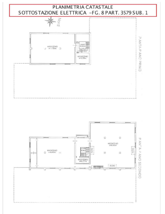
Compendio immobiliare avente una superficie territoriale di circa 13.000 m², con diritti edificatori per un massimo di 5.000 m² con destinazione d'uso terziario-commerciale e direzionale. L'immobile è costituito dall’edificio della ex sottostazione elettrica, sottoposto a vincolo culturale, e da due fabbricati ad uso abitativo ubicati lungo l’adiacente linea ferroviaria.

indirizzo:
Via Torino , 4-6 - Collegno (TO)

Dettagli

Tipologie immobile
Area edificabile, Altre tipologie, Aree in trasformazione, Edificio cielo/terra, Appartamento
Funzioni ammesse
Direzionale, Logistico/produttivo
Superficie territoriale (m²)
12.997 m²
SLP Totale (m²)
Stato manutentivo
Buono - mediocre
Stato occupazionale
Parzialmente occupato
Profilo di rischio

Compendio immobiliare avente una superficie territoriale di circa 13.000 m², con diritti edificatori per un massimo di 5.000 m² con destinazione d’uso terziario-commerciale e direzionale. L’immobile è costituito dall’edificio della ex sottostazione elettrica, sottoposto a vincolo culturale, e da due fabbricati ad uso abitativo ubicati lungo l’adiacente linea ferroviaria. L’immobile è a poca distanza dalla stazione ferroviaria di “Collegno”. Di prossima realizzazione anche la nuova fermata “Certosa” della linea 1 della metropolitana, con collegamenti con il centro di Torino.

Il compendio è situato in zona periferica di Collegno (48.430 abitanti), comune ricompreso nel territorio della Città Metropolitana di Torino, con accesso da Via Torino, sotto il parco urbano “Carlo Alberto Dalla Chiesa”, e Via di S. Massimo, a 500 mt dalla stazione ferroviaria e ad 1 Km circa dall’abitato urbano. Nell’area, che ricade all’interno della variante “Collegno rigenera” Ambito RigU-A.2, sono presenti una pista ciclopedonale e la fermata metro “Certosa” di prossima attivazione, che renderà particolarmente agevoli gli spostamenti da e verso il centro di Torino. La città dista 10 km circa dal capoluogo (25-35 minuti in auto) e 70 km circa da Asti (50-60 minuti in auto). L’aeroporto internazionale Caselle di Torino si trova a 23 km circa dalla zona (30 minuti in auto).

terreno
7235 m²
cabina elettrica
35 m²
vano tecnico
12 m²
magazzino
15 m²
fabbricato principale
1250 m²

Compendio immobiliare avente una superficie territoriale di circa 13.000 m², con diritti edificatori per un massimo di 5.000 m² con destinazione d'uso terziario-commerciale e direzionale. L'immobile è costituito dall’edificio della ex sottostazione elettrica, sottoposto a vincolo culturale, e da due fabbricati ad uso abitativo ubicati lungo l’adiacente linea ferroviaria.

Procedure

Vedi dettagli contatto per manifestazioni di interesse e simili

Via Torino , 4-6 - Collegno (TO)

Contatto

ICE - Italian Trade Agency

Richiedi informazioni

Pianta principale

Collegno (TO) – Complesso in Via Torino Pianta principale