Siete già iscritti? /

Poppi (AR) – Complesso edilizio ex RSA

Compendio immobiliare ex casa di riposo, situato sulle colline della provincia di Arezzo, con splendida vista sulla campagna circostante. Il complesso edilizio, costituito da più fabbricati per lo più edificati agli inizi del '900, comprende la ex chiesa dell'Ascensione, di epoca secentesca, ed è circondato da un ampio parco esclusivo. L'immobile, attualmente inutilizzato, in virtù della sua localizzazione, ben si presta ad essere adibito a struttura turistico-ricettiva, o riportato all'uso originario.

indirizzo:
Via Colle Ascensione, 22 - 52014 Poppi (AR)

Dettagli

Tipologie immobile
Altre tipologie
Funzioni ammesse
Residenziale, Turistico ricettivo
Superficie territoriale (m²)
10.000 m²
SLP Totale (m²)
Numero unità
5
Anno di costruzione
1900
Stato manutentivo
Buono
Stato occupazionale
Libero
Profilo di rischio

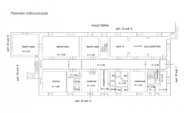
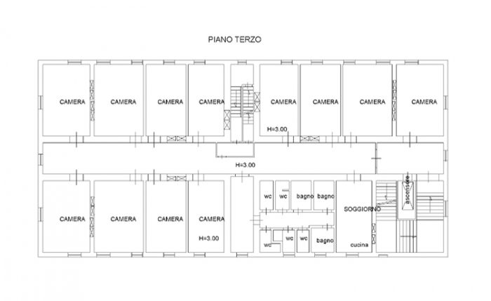
Il complesso immobiliare risulta costituito da più fabbricati realizzati agli inizi del ‘900, fatta eccezione per la cappella, il cui impianto risale al XVI secolo e conserva le proporzioni della chiesa monastica. Il fabbricato principale, a pianta rettangolare, risulta articolato su 5 livelli fuori terra ed un piano interrato, per una superficie lorda di 3.300 m², ed è stato sempre adibito a casa di riposo. Sono presenti due fabbricati ad uso abitativo di 180 m² e 240 m² lordi, due magazzini (130 m² e 350 m²) e l’ex chiesa dell’Ascensione (280 m²), con il porticato anteriore e i due vani laterali. Il complesso edilizio, attualmente inutilizzato, è inserito in un ampio parco circondato da un muro in pietra, di oltre 11.000 m², in gran parte ricoperto da bosco. L’amministrazione comunale si è detta disponibile a consentire la trasformazione del compendio in un polo turistico-ricettivo.

L’immobile è situato nel territorio del Comune di Poppi (6.396 abitanti), in Provincia di Arezzo (345.110 abitanti), nella Regione Toscana. La cittadina è ricompresa nella Comunità Montana del Casentino, una delle quattro vallate principali in cui è suddivisa la provincia di Arezzo. Il Monte Falterona, assieme al Monte Falco, rappresentano il limite settentrionale della vallata, ai confini con la Romagna. Il paesaggio varia dalle grandi foreste delle zone di montagna alle zone pianeggianti del fondovalle. Le caratteristiche peculiari del territorio hanno evocato i percorsi di  San Francesco che scelse la Verna (30 Km) come luogo di preghiera, oggi sede di un convento francescano e tappa del cammino di rinnovato interesse spirituale. Il complesso è situato tra l’abitato di Poppi e la rocca di Fronzola, lungo Via Colle Ascensione, collegata attraverso viabilità statale con le città di Firenze (60 km) ed Arezzo (40 km), e da lì alla rete autostradale e ferroviaria nazionale. La stazione ferroviaria cittadina, sulla linea Arezzo-Pratovecchio/Stia, si trova a 2 km circa dall’immobile. Il casello “Arezzo” dell’Autostrada A-1 (Roma-Firenze) dista 45 km dall’immobile, mentre l’uscita “Bagno di Romagna” della E-45 (Orte-Cesena) si trova a 35 km.

 

 

Compendio immobiliare ex casa di riposo, situato sulle colline della provincia di Arezzo, con splendida vista sulla campagna circostante. Il complesso edilizio, costituito da più fabbricati per lo più edificati agli inizi del '900, comprende la ex chiesa dell'Ascensione, di epoca secentesca, ed è circondato da un ampio parco esclusivo. L'immobile, attualmente inutilizzato, in virtù della sua localizzazione, ben si presta ad essere adibito a struttura turistico-ricettiva, o riportato all'uso originario.

Procedure

Vendita della piena proprietà con bando pubblico

Via Colle Ascensione, 22 - 52014 Poppi (AR)

Contatto

ICE - Italian Trade Agency

Richiedi informazioni

Pianta principale

Poppi (AR) – Complesso edilizio ex RSA Pianta principale