Siete già iscritti? /

Crocefieschi (GE)- Dimora Storica

Compendio immobiliare, ex colonia estiva, situato in prossimità del centro storico di Crocefieschi, comune dell'entroterra ligure, nella Città metropolitana di Genova. L'immobile, costruito nel 1938, sviluppa una superficie interna di 3.600 m², con un ampio spazio verde di 15.400m². L'edificio può essere valorizzato con funzioni turistico-ricettive, agriturismo, RSA, centro sportivo, residenziale e commerciale.

indirizzo:
Via degli alpini, 39 - 16010 Genova (GE)

Dettagli

Tipologie immobile
Edificio storico, Aree in trasformazione, Villa, Terreno
Funzioni ammesse
Altre funzioni, Commerciale, Residenziale, RSA/Senior Housing, SPA/Benessere, Sport, tempo libero, eventi, Student House, Turistico ricettivo
Superficie territoriale (m²)
15.400 m²
SLP Totale (m²)
Anno di costruzione
1938
Stato manutentivo
Buono
Stato occupazionale
Libero
Profilo di rischio

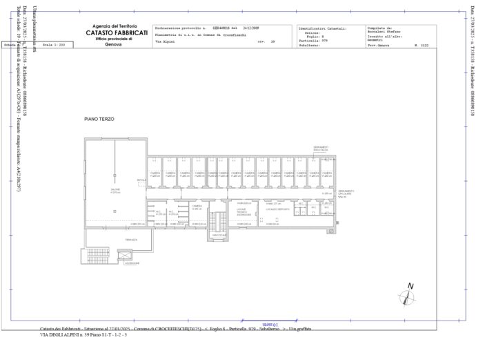
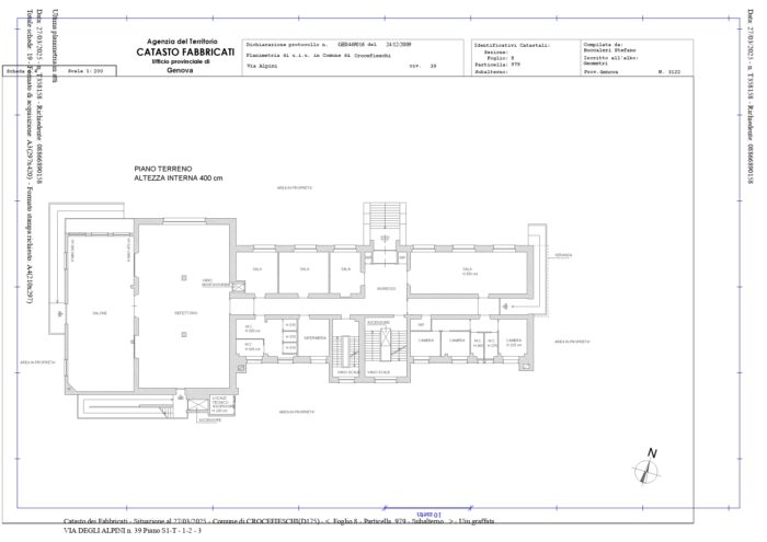
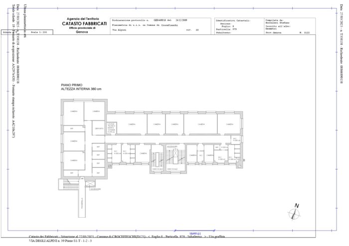
Il complesso immobiliare è articolato in due corpi di fabbrica integrati tra loro e circondati da un’ampia area esterna di 15.400 m². Il fabbricato principale si sviluppa su quattro piani fuori terra oltre un livello seminterrato, con il terzo piano parzialmente mansardato. In adiacenza all’edificio principale è presente un secondo corpo di fabbrica di minore dimensione in pianta articolato su quattro piani fuori terra ed un sottotetto accessibile. L’immobile è servito da due vani scala interni (uno con ascensore), ed un terzo corpo scala esterno sul retro. L’area esterna, completamente recintata, è adibita a parcheggio ed aree verdi d’uso comune e risulta in parte in pendenza. L’immobile ha accesso carrabile e pedonale da Via degli Alpini con possibilità di accesso veicolare anche dal retro.

L’immobile si trova in prossimità del centro storico di Crocefieschi, piccolo comune (534 abitanti) situato in zona collinare nell’entroterra ligure, all’altezza dello scollinamento della strada provinciale Busalla – Crocefieschi – Vobbia. Il territorio, ricompreso nella Città Metropolitana di Genova, è servito da trasporto pubblico extra-urbano con corse giornaliere, utilizzate per lo più dai pendolari verso la bassa Valle Scrivia. Le principali infrastrutture della valle (ospedale, stazione ferroviaria, servizi di emergenza, uffici pubblici e centri commerciali), si trovano nel vicino Comune di Busalla. Genova dista 35 km circa (40-50 minuti in auto), Milano si trova a 128 km circa (90-120 minuti in auto). La stazione ferroviaria di Busalla, sulla tratta regionale Novi Ligure-Genova e il casello “Busalla” sull’autostrada A7 (Autostrada dei Giovi), che collega Genova con Milano, si trovano a 10 km dall’immobile (15-20 minuti in auto).

Piano seminterrato
540 mq
Piano terreno
900 mq
Piano primo
740 mq
Piano secondo
740 mq
Piano terzo
680 mq

Compendio immobiliare, ex colonia estiva, situato in prossimità del centro storico di Crocefieschi, comune dell'entroterra ligure, nella Città metropolitana di Genova. L'immobile, costruito nel 1938, sviluppa una superficie interna di 3.600 m², con un ampio spazio verde di 15.400m². L'edificio può essere valorizzato con funzioni turistico-ricettive, agriturismo, RSA, centro sportivo, residenziale e commerciale.

Via degli alpini, 39 - 16010 Genova (GE)

Contatto

ICE - Italian Trade Agency

Richiedi informazioni

Pianta principale

Crocefieschi (GE)- Dimora Storica Pianta principale