Siete già iscritti? /

Barletta (BT) – Edificio Ex Anagrafe

Compendio immobiliare situato nel centro storico di Barletta, adiacente a Palazzo della Marra (sede della Pinacoteca “G. De Nittis” e di mostre temporanee) a breve distanza dal Castello Svevo, dalla Basilica Cattedrale Santa Maria Maggiore e dalla statua del colosso di Eraclio. La parte retrostante dell'edificio è prospiciente Via Mura del Carmine, a ridosso della Porta Marina e del Lungomare Pietro Mennea. L’immobile, edificato come primo impianto nel 1500 e vincolato ai sensi del Dgls 42/2004 dal MIBACT, in virtù della sua localizzazione, ben si presta ad essere trasformato in struttura turistico-ricettivo, student-house, social-housing o contenitore di attività culturali.

indirizzo:
Via Cialdini, 64 - 76121 Barletta (BT)

Dettagli

Tipologie immobile
Altre tipologie, Edificio storico
Funzioni ammesse
Turistico ricettivo
Superficie territoriale (m²)
4.365 m²
SLP Totale (m²)
Anno di costruzione
Seconda metà del 1500
Stato manutentivo
Da valorizzare
Stato occupazionale
Libero
Profilo di rischio

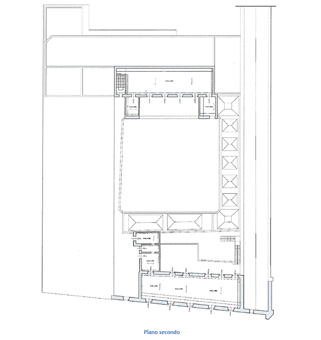
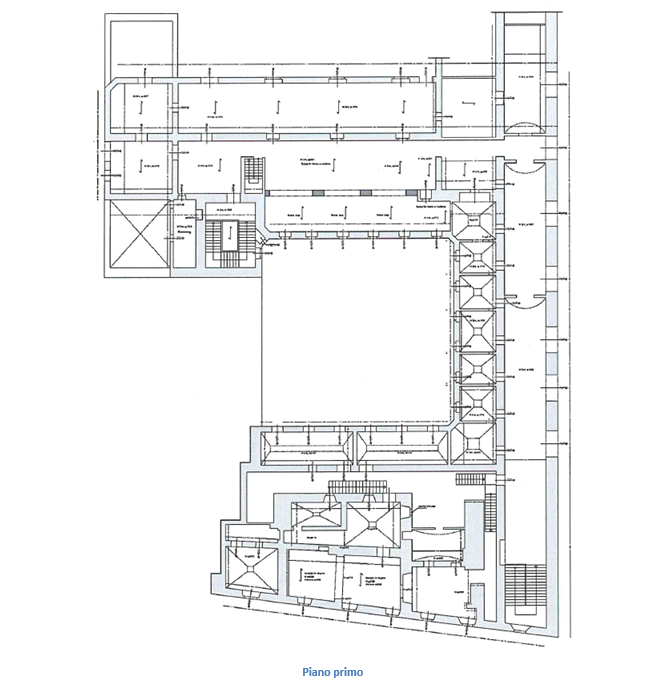
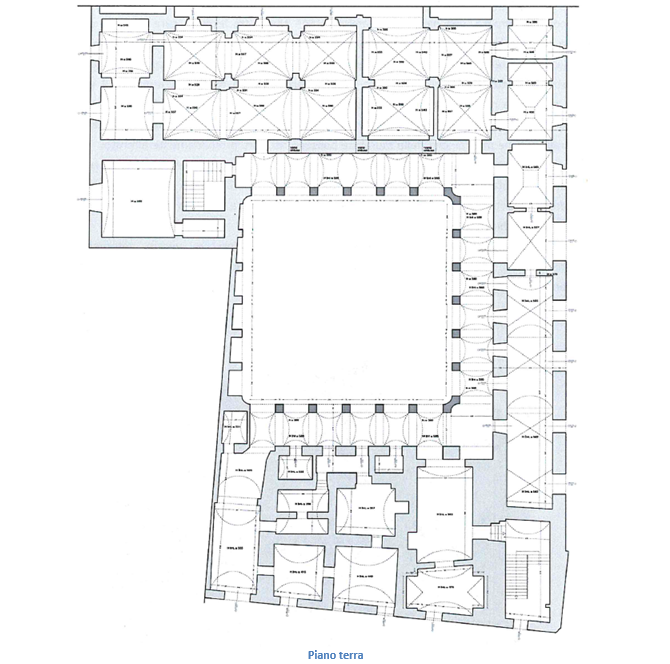
Il compendio immobiliare, la cui porzione più antica è stata edificata nella seconda metà del 1500, si sviluppa su tre piani fuori terra ed è dotato di ampia corte centrale; è ubicato tra le vie Cialdini, della Marra, Asilo Infantile e Mura del Carmine. La struttura è composta da setti e pilastri in muratura; le strutture di piano e gli orizzontamenti sono essenzialmente costituiti da volte, al piano terra, e da solai a voltine o piani con putrelle in acciaio o travi in legno e tavolati; la copertura è del tipo mista.

L’immobile, libero e in disuso, necessita di notevoli opere di consolidamento statico; la dotazione impiantistica, seppur in pessime condizioni, è costituita da impianto di riscaldamento, ascensore, montacarichi, depuratore, allacciamento alla rete idrica e cabina elettrica. L’amministrazione locale, vista l’importanza dell’immobile ed in considerazione del contesto in cui è inserito e delle sue caratteristiche tipologiche, è disponibile a considerare mutamenti di destinazione d’uso finalizzati alla sua piena riqualificazione.

 

 

L’immobile è localizzato nel centro storico di Barletta (94.673 abitanti), capoluogo insieme a Andria e Trani della omonima Provincia (Barletta-Andria-Trani, 394.456 abitanti), quinta città della Regione Puglia per popolazione residente. La zona in cui è situato l’edificio, prevalentemente residenziale, si caratterizza per una ricettività turistica molto sviluppata, favorita anche dalla vicinanza con la costa (il Lungomare Pietro Mennea si trova a meno di 450 metri dall’immobile). La zona presenta un’ottima accessibilità veicolare garantita da uno sviluppato sistema di viabilità principale e secondaria (la SS-16, principale dorsale adriatica, si trova a breve distanza dall’immobile), risulta dotata dei principali servizi, uffici pubblici ed esercizi commerciali, ed è localizzata nel raggio di 600 metri circa dai principali monumenti (su tutti il Colosso di Eraclio) e dagli edifici di maggior pregio storico-architettonico della città: il Castello Svevo, il Palazzo della Marra, sede della Pinacoteca “G. De Nittis” e di mostre temporanee, la Basilica Cattedrale Santa Maria Maggiore e il Teatro “Giuseppe Curci”. La stazione ferroviaria, che garantisce collegamenti con le città di Andria, Bari, Bologna, Foggia, Lecce, Milano e Torino, dista 1 km circa, mentre l’aeroporto internazionale “Karol Wojtyla” di Bari-Palese (12° scalo italiano con 4,7 milioni di passeggeri nel 2017) si trova ad 55 km circa dalla città. Il Casello “Andria-Barletta” dell’Autostrada A-14 (Adriatica), principale dorsale autostradale adriatica che collega Taranto a Bologna, dista 9,5 km dall’immobile.

Compendio immobiliare situato nel centro storico di Barletta, adiacente a Palazzo della Marra (sede della Pinacoteca “G. De Nittis” e di mostre temporanee) a breve distanza dal Castello Svevo, dalla Basilica Cattedrale Santa Maria Maggiore e dalla statua del colosso di Eraclio. La parte retrostante dell'edificio è prospiciente Via Mura del Carmine, a ridosso della Porta Marina e del Lungomare Pietro Mennea. L’immobile, edificato come primo impianto nel 1500 e vincolato ai sensi del Dgls 42/2004 dal MIBACT, in virtù della sua localizzazione, ben si presta ad essere trasformato in struttura turistico-ricettivo, student-house, social-housing o contenitore di attività culturali.

Procedure

Concessione di valorizzazione con bando pubblico

Via Cialdini, 64 - 76121 Barletta (BT)

Contatto

ICE - Italian Trade Agency

Richiedi informazioni

Pianta principale

Barletta (BT) – Edificio Ex Anagrafe Pianta principale