Siete già iscritti? /

Tivoli (RM) – Ex Azienda Agricola Cesurni

ll compendio è costituito da un lotto di terreno con annessi manufatti. Il lotto di forma trapezioidale è pressoché pianeggiante, ed ha una superficie complessiva di m². 464.736,04. La proprietà è delimitata su tre lati dal percorso del fiume Aniene. Sono presenti n. 11 fabbricati un tempo adibiti a residenze, uffici, celle impollinazione, serre, magazzini ecc. L’azienda era sede di importanti collezioni di germoplasma di specie arboree da legno. Erano presenti anche vivai di mantenimento e conservazione del materiale di base per la certificazione, produzione e commercializzazione dei cloni di pioppo selezionati e brevettati dal ex Centro di Sperimentazione Agricola e Forestale (CSAF).

indirizzo:
VIA CESURNI, 00019 - Tivoli (RM)

Dettagli

Tipologie immobile
Altre tipologie
Funzioni ammesse
Altre funzioni
Superficie territoriale (m²)
464.736 m²
SLP Totale (m²)
GLA totale
Anno di costruzione
1940-1990
Stato manutentivo
Da valorizzare
Stato occupazionale
Libero

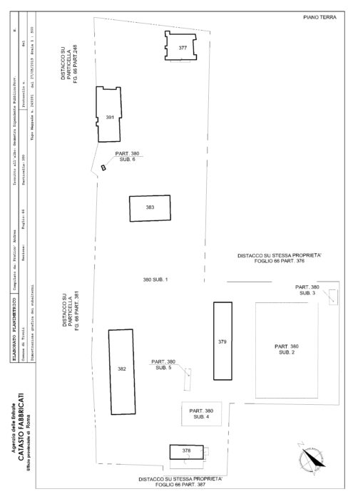
Il complesso edilizio è costituito da vari corpi di fabbrica con diverse destinazioni. Tali immobili sono stati realizzati tra gli anni 40/90. Nello specifico risulta costituito da n. 11 manufatti comprendenti: un manufatto adibito a deposito/magazzino (n. 1), un manufatto adibito in parte a residenziale e in parte a deposito (n. 2), un manufatto adibito in parte ad uffici ed in parte a residenziale (n. 3), un manufatto adibito a serra sperimentale (n. 4), un manufatto adibito a capannone industriale (n. 5), un manufatto in struttura metallica adibito a serra (n. 6), un manufatto in struttura metallica adibito a rimessa/ricovero attrezzi agricoli (n. 7), un manufatto adibito a magazzino/deposito (n. 8), un manufatto in lamiera a protezione dell’impianto di acqua potabile (n. 9), un manufatto adibito a capannina meteorologica (n. 10), un manufatto adibito a magazzino/ricovero attrezzi (n. 11).

Si può ottenere tramite accordo di programma un cambio di destinazione d’uso.

L’ex Azienda Cesurni è ubicata nel Comune di Tivoli (cittadina di circa 56.603 abitanti), Zona Bagni di Tivoli, Via Cesurni Snc Rolando in zona suburbana. La zona è ben collegata con la viabilità (via Tiburtina) facilmente raggiungibile dai mezzi pubblici (Stazione Tivoli Terme), ma povera di servizi primari e secondari. L’area confina con il Fiume Aniene, la Via Cesurni – attraverso una servitù di passaggio, e altre proprietà. Il complesso edilizio è costituito da vari corpi di fabbrica con diverse destinazioni. Tali immobili sono stati realizzati tra gli anni 40/90. Nello specifico sono:

1.un manufatto adibito a deposito/magazzino (p.lla 377)  costituito da un solo piano fuori terra ed è stato edificato tra il 1930 e il 1940. La superficie lorda del bene in questione è di m². 130,00.;

2.un manufatto adibito in parte a residenziale e in parte a deposito (p.lla 391) costituito per la parte residenziale da due piani fuori terra, mentre per la parte adibita a magazzino/deposito da un solo piano fuori terra. Tale bene è stato edificato tra il 1930 e il 1940. La superficie lorda della parte residenziale è di m² 187,20, mentre la superficie lorda del magazzino è di m² 129,40;

3.un manufatto adibito in parte ad uffici e in parte a residenziale (p.lla 383) costituito da due piani fuori terra, un sottotetto ed un piano interrato.  La superficie lorda di ogni piano è pari a m² 179,00.

4.un manufatto adibito a serra sperimentale (p.lla 379) ad un solo piano fuori terra – SUL 247;

5.un manufatto adibito a capannone industriale (p.lla 382) ad un solo piano fuori terra – SUL 360,00;

6.un manufatto edificato in struttura metallica adibito a serra (linea tratteggiata sull’estratto di mappa) ad un solo piano fuori terra – SUL 1056,50;

7.un manufatto in struttura metallica adibito a rimessa/ricovero attrezzi agricoli (linea tratteggiata), ad un solo piano fuori terra – SUL 170;

8.un manufatto adibito a magazzino/deposito (p.lla 378) ad un solo piano fuori terra – SUL 82,00;

9.un manufatto in lamiera a protezione dell’impianto di acqua potabile (linea tratteggiata) ad un solo piano fuori terra – SUL 22,80

10.un manufatto adibito a capannina meteorologica (p.lla 388) ad un solo piano fuori terra – SUL 29,00;

11.un manufatto adibito a magazzino/ricovero attrezzi (p.lla 389) ad unnsolo piano fuori terra – SUL 12,00

Secondo i dati dell’ OMI, il prezzo degli appartamenti nelle diverse (9) zone a Tivoli è compreso in tutta la città tra 900 €/m² e 1.850 €/m² per la compravendita e tra 3,3 €/m² mese e 6,9 €/m² mese per quanto riguarda le locazioni.

Il prezzo medio degli appartamenti in vendita (1.600 €/m²) è di circa il 33% inferiore alla quotazione media regionale, pari a 2.400 €/m² ed è anche di circa il 39% inferiore alla quotazione media provinciale (2.650 €/m²).
Le quotazioni a Tivoli sono relativamente omogenee e il 60% degli appartamenti in vendita ha un prezzo compreso tra 1.100 €/m² e 2.000 €/m².
Tivoli ha un prezzo medio degli appartamenti in vendita di circa 1.600 €/m²

TERRA
3142 m²
Certificato di destinazione urbanistica

ll compendio è costituito da un lotto di terreno con annessi manufatti. Il lotto di forma trapezioidale è pressoché pianeggiante, ed ha una superficie complessiva di m². 464.736,04. La proprietà è delimitata su tre lati dal percorso del fiume Aniene. Sono presenti n. 11 fabbricati un tempo adibiti a residenze, uffici, celle impollinazione, serre, magazzini ecc. L’azienda era sede di importanti collezioni di germoplasma di specie arboree da legno. Erano presenti anche vivai di mantenimento e conservazione del materiale di base per la certificazione, produzione e commercializzazione dei cloni di pioppo selezionati e brevettati dal ex Centro di Sperimentazione Agricola e Forestale (CSAF).

VIA CESURNI, 00019 - Tivoli (RM)

Contatto

ICE - Italian Trade Agency

Richiedi informazioni

Pianta principale

Tivoli (RM) – Ex Azienda Agricola Cesurni Pianta principale