Siete già iscritti? /

Ponte di Piave (TV) – ex distilleria

Il compendio immobiliare, ex “Distilleria delle cantine sociali Venete”, è ubicato nel comune di Ponte di Piave, in provincia di Treviso, in una delle provincia più ricche del Veneto, il cui territorio è incluso nell'itinerario eno-gastronomico "Strada del Prosecco e vini dei Colli Conegliano - Valdobbiadene, nella zona industriale del comune in località Levada. L'edificio di tipo industriale deve essere demolito per realizzare un moderno capannone logistico-produttivo.

Ponte Piave Loc. Levada, via delle Industrie, 2 - 31047 Levada (TV)

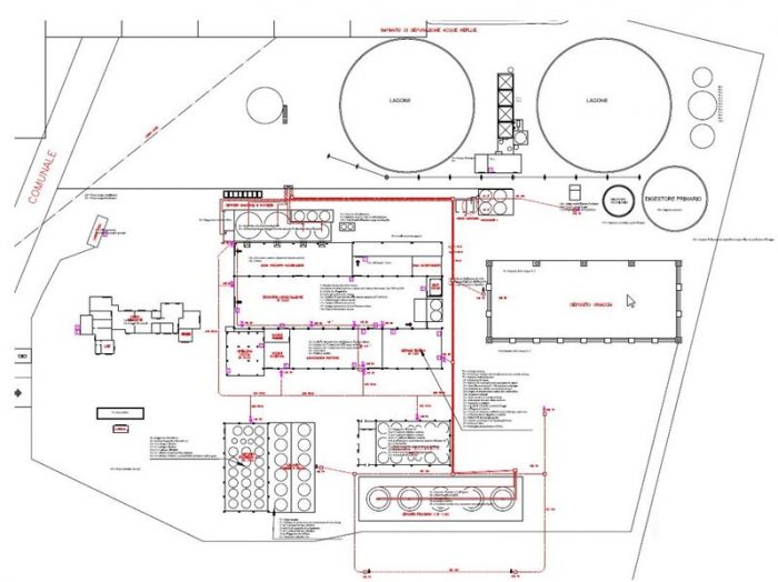
Il complesso “Distilleria delle cantine sociali Venete”, sito nella zona industriale del paese, confina ad est con la SS-53 Postumia, nel tratto che va da Ponte di Piave ad Oderzo, a sud e a ovest con Via delle Industrie. La proprietà, costituita da un terreno di superficie pari a 53.877 m², su cui insistono fabbricati industriali (realizzati in cemento e metallici) ed un fabbricato civile per una superficie coperta di 4.247 m². L’area su cui insistono i fabbricati è interamente recintata, parzialmente adibita a parcheggi, piazzali di deposito ed opere complementari, inutilizzata da alcuni anni ed in scadenti condizioni di manutenzione. L’area in oggetto, a livello urbanistico, rientra in Zona D1 – Attività artigianali, industriali, terziario diffuso, vincolo ambientale ex legge 431/85. La demolizione dei manufatti esistenti e la costruzione di un moderno capannone, rappresentano la migliore opportunità di valorizzazione del sito.

La proprietà si trova nel Comune di Ponte di Piave (8.345 abitanti), nella frazione Levada (1.700 abitanti), nella parte centro-orientale della Provincia veneta di Treviso (885.972 abitanti), sulle rive del fiume Piave, lungo la SS-53 Postumia. Il casello autostradale più vicino è quello di San Donà-Noventa, posto a 8 km, che immette sull’autostrada A-4 Torino-Trieste. La stazione ferroviaria cittadina, sulla linea Venezia-Trieste, si trova a 12 km dalla zona. Treviso dista 21 km, Venezia 48 km, Padova a 66 km.

Fabbricato civile:
590 m²
Fabbricato industriale:
3.657 m²

Il compendio immobiliare, ex “Distilleria delle cantine sociali Venete”, è ubicato nel comune di Ponte di Piave, in provincia di Treviso, in una delle provincia più ricche del Veneto, il cui territorio è incluso nell'itinerario eno-gastronomico "Strada del Prosecco e vini dei Colli Conegliano - Valdobbiadene, nella zona industriale del comune in località Levada. L'edificio di tipo industriale deve essere demolito per realizzare un moderno capannone logistico-produttivo.

Ponte Piave Loc. Levada, via delle Industrie, 2 - 31047 Levada (TV)

Contatto

ICE - Italian Trade Agency

Richiedi informazioni

Pianta principale

Ponte di Piave (TV) – ex distilleria Pianta principale