Siete già iscritti? /

Dolo (VE) – ex macello comunale

Compendio immobiliare, esempio di stile neoclassico edificato nella metà dell'800, situato nel centro storico di Dolo, in corrispondenza della confluenza tra i due rami del Naviglio del Brenta. Ristrutturato negli anni '70 fu adibito a spazio sociale e le sue sale sono attualmente utilizzate come sede per mostre e congressi. Possibile il cambio di destinazione d'uso in terziario, residenze, servizi ed attività di interesse culturale.

indirizzo:
Via Rizzo, 73 - 30031 Dolo (VE)

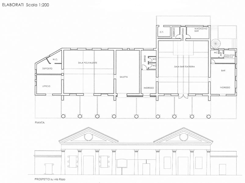
L’edificio, costruito a metà dell’ottocento per essere adibito a macello comunale si sviluppa su un unico piano e presenta lo stile tipico dell’architettura neoclassica, con il prospetto principale caratterizzato dal doppio timpano e dal profondo portico dotato di colonne di ordine tuscanico. Si compone di due ampie sale principali, altre due sale più piccole, di cui una adibita a bar, e relativi locali accessori e servizi. Completamente ristrutturato a partire dal 1976, viene attualmente utilizzato dal Comune di Dolo come sala Polivalente e Teatro per ospitare mostre e congressi. La valorizzazione dell’immobile, agevolata dal cambio di destinazione d’uso attualmente in itinere, consentirà di ospitare attività diverse che troverebbero negli ampi spazi e nella splendida cornice dell’immobile una collocazione di assoluti pregio, potendo disporre del plateatico affacciato sul Naviglio del Brenta. Tali peculiarità permetterebbero di creare un polo attrattivo di grande interesse che fungerebbe da volano culturale e socio – economico per la zona. Lo stato di conservazione buono e l’attuale predisposizione ricettiva, ne permettono l’utilizzo senza modifiche sostanziali, condizione indispensabile dati i vincoli paesaggistici e ambientali presenti sul sito.

L’edificio è situato nel centro storico del Comune di Dolo (14.953 abitanti), parte della Città Metropolitana di Venezia (854.434 abitanti). Dolo vanta una storia secolare che affonda le proprie radici nel periodo del Basso Medioevo ed offre una serie di attrattive storico – artistiche, tra cui la Chiesa di San Rocco, i Mulini e il tipico “Squero” cinquecentesco, oltre a numerose ville monumentali del medesimo periodo storico. La stazione ferroviaria più vicina, si trova nella contigua frazione Ballò di Mirano, lungo la tratta Milano – Venezia, a 3,5 km dalla cittadina. La viabilità è garantita dalla SR-11 Padana Superiore e dalla SP-26. Il casello autostradale più vicino è “Mirano-Dolo”, sull’A-57 Tangenziale di Mestre (Mirano – Dolo), a circa 9 km dal centro abitato. Venezia si trova a 25 km, Padova a 20 km, Treviso a 45 km. L’aeroporto internazionale “Marco Polo” di Venezia (5° scalo italiano con 9,6 milioni di passeggeri nel 2016) dista 30 km dalla città.

 

Compendio immobiliare, esempio di stile neoclassico edificato nella metà dell'800, situato nel centro storico di Dolo, in corrispondenza della confluenza tra i due rami del Naviglio del Brenta. Ristrutturato negli anni '70 fu adibito a spazio sociale e le sue sale sono attualmente utilizzate come sede per mostre e congressi. Possibile il cambio di destinazione d'uso in terziario, residenze, servizi ed attività di interesse culturale.

Procedure

Concessione di valorizzazione con bando pubblico

Via Rizzo, 73 - 30031 Dolo (VE)

Contatto

ICE - Italian Trade Agency

Richiedi informazioni

Pianta principale

Dolo (VE) – ex macello comunale Pianta principale