Siete già iscritti? /

Vigevano (PV) – Edificio Ex Carceri

Compendio immobiliare, ex carcere, ubicato in zona centrale nel comune di Vigevano, in area di notevole pregio architettonico nelle vicinanze del castello Sforzesco. L'edificio, in virtù delle sue caratteristiche tipologiche e della sua localizzazione, ben si presta ad essere valorizzato come struttura turistico-ricettiva, o in abitazioni.

indirizzo:
Via Carceri - 27029 Vigevano (PV)

Dettagli

Tipologie immobile
Edificio storico
Funzioni ammesse
Commerciale, Direzionale, Residenziale, Turistico ricettivo
Superficie territoriale (m²)
910 m²
SLP Totale (m²)
Numero unità
1
Anno di costruzione
1819
Stato manutentivo
Da valorizzare
Stato occupazionale
Libero
Profilo di rischio

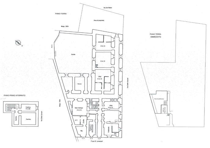
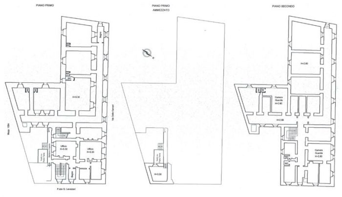
Il compendio è costituito da un edificio principale avente conformazione planimetrica a “T”, articolato su tre piani fuori terra oltre spazi al piano interrato con due corti aperte parzialmente delimitate da alte mura perimetrali, tipiche delle strutture carcerarie, in parte destinate a parcheggio. L’immobile è stato edificato nella prima metà dell’800 con struttura portante in muratura e copertura lignea a falde, sviluppato attorno al cortile principale in posizione decentrata, su cui affacciano alcuni locali accessori. L’edificio fino al 2000 è stato destinato a caserma, sede del Comando Tenenza della Guardia di Finanza. Nel 2005, a seguito della sottoscrizione di un Protocollo d’Intesa tra il Ministero delle Finanze ed il Comune di Vigevano, finalizzato alla valorizzazione del bene, ne è stata modificata la destinazione d’uso in “Edifici e Complessi Speciali”. L’immobile è soggetto ai vincoli paesaggistico e monumentale, e rientra nell’ambito delle zone di interesse archeologico; il Ministero per i Beni e le Attività Culturali ha rilasciato nel 2007 l’autorizzazione all’alienazione del bene con destinazioni d’uso compatibili con il suo valore storico-artistico, ovvero “attività socio-collettive, museali, terziario ed in linea di massima anche residenziale purchè non intensivo”, estendendole anche a “funzioni ricettive e commerciali limitatamente agli esercizi di vicinato”.

L’immobile è ubicato nel centro storico del Comune di Vigevano (63.142 abitanti), in provincia di Pavia (547.926 abitanti), a breve distanza dal Castello Sforzesco, da Piazza Ducale e dalla Parrocchia del Duomo. La zona in cui l’immobile è situato si caratterizza per la presenza di palazzetti pluri-familiari e complessi civili e religiosi, con prevalente destinazione d’uso residenziale; nei dintorni dell’immobile si trovano inoltre uffici pubblici (Tribunale e Procura) ed immobili a destinazione terziaria e commerciale. La cittadina presenta un’ottima accessibilità stradale, garantita dalla SS-494 (vigevanese) che collega Milano con Alessandria, passando per Vigevano. La Stazione ferroviaria, che dista 1 km dall’immobile, garantisce collegamenti con Milano (30 minuti per Milano Porta Genova), sulla linea Milano-Mortara, e Alessandria. Milano dista 50 km, Pavia 40 km, Novara 30 km, Vercelli 44 km. La tangenziale Ovest di Milano (A-50), che consente l’immissione nella rete autostradale, si trova a 43 km, mentre il casello “Pavia Sud” dell’Autostrada A-7 (Milano-Genova) dista 24 km. L’aeroporto internazionale di “Milano-Malpensa” (2° scalo italiano con 19,5 milioni di passeggeri nel 2016) si trova a 45 km dalla città.

Piano seminterrato:
127,5 mq
Piano terra:
1.128 mq
Piano primo:
638 mq
Piano secondo:
560 mq

Compendio immobiliare, ex carcere, ubicato in zona centrale nel comune di Vigevano, in area di notevole pregio architettonico nelle vicinanze del castello Sforzesco. L'edificio, in virtù delle sue caratteristiche tipologiche e della sua localizzazione, ben si presta ad essere valorizzato come struttura turistico-ricettiva, o in abitazioni.

Via Carceri - 27029 Vigevano (PV)

Contatto

ICE - Italian Trade Agency

Richiedi informazioni

Pianta principale

Vigevano (PV) – Edificio Ex Carceri Pianta principale