Siete già iscritti? /

Isola di Capo Rizzuto (KR) – Faro di Capo Rizzuto

Segnalamento marittimo con annessa residenza per faristi, ubicato nel Comune di Isola di Capo Rizzuto, nel tratto di mare compreso nell'Area Marina Protetta Capo Rizzuto. Il compendio, situato in prossimità del mare in un contesto paesaggistico di grande interesse, potrà essere riqualificato, secondo il modello di “lighthouse accommodation”, accogliendo attività turistiche, ricettive, ristorative, ricreative, didattiche e promozionali. L'immobile verrà concesso in uso a soggetti terzi senza essere alienato.

indirizzo:
Via Faro - 88841 Crotone (KR)

Dettagli

Tipologie immobile
Edificio storico
Funzioni ammesse
Commerciale, Turistico ricettivo
Superficie territoriale (m²)
1.870 m²
SLP Totale (m²)
Numero unità
1
Stato manutentivo
Da valorizzare
Stato occupazionale
Libero
Profilo di rischio

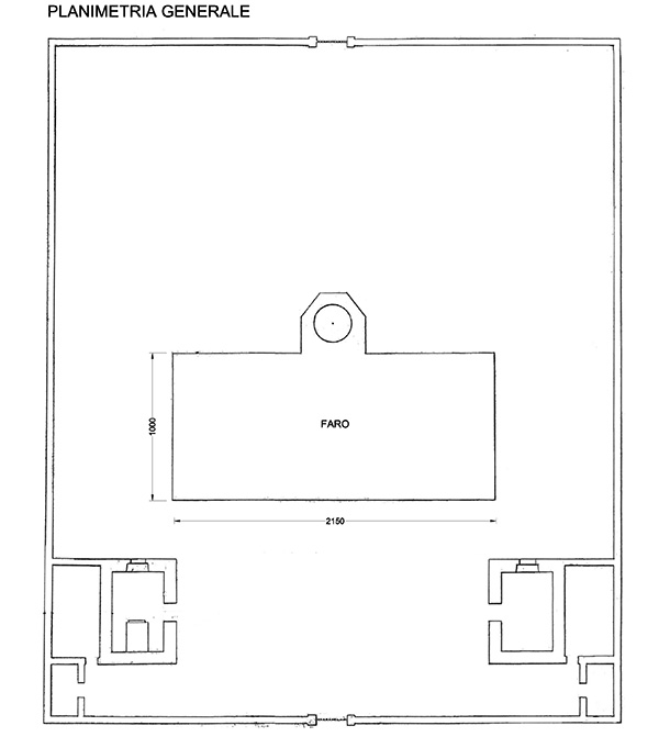
Faro marittimo realizzato dalla Marina Militare Italiana in una zona extraurbana costiera antistante l’area marina protetta, distante solo 8 km dal centro urbano di Isola di Capo Rizzuto e raggiungibile dal centro abitato tramite strada asfaltata. Il complesso militare include un fabbricato (alloggio) collegato all’alta torre ottagonale che, tramite un vano scala circolare, rende raggiungibile la lanterna. L’edificio principale (alloggio), avente planimetria regolare, è simmetrico ed è costituito da un solo piano fuori terra. Nel complesso militare sono presenti due piccoli fabbricati pertinenziali di servizio. La superficie coperta è di 365 m² con un’area pertinenziale di 1.870 m². L’immobile rimarrà nella disponibilità del Ministero della Difesa e sarà dato in concessione a soggetti terzi, che dovranno valorizzarlo.

 

Il Faro è ubicato su promontorio di Capo Rizzuto, nel Comune di Isola di Capo Rizzuto (17.552 abitanti). La località, considerata fin dall’epoca pre-ellenica, luogo sacro ed inviolabile, strategico punto di riferimento per la navigazione, è una località costiera posizionata a sud di Crotone, centro urbano di riferimento più importante insieme alla vicina Isola di Capo Rizzuto. Ospita un’area marina protetta istituita nel 2002 che, con i suoi 42 km di costa, è la maggiore d’Italia per ampiezza. L’area, oltre a rivestire un notevole interesse dal punto di vista archeologico, presenta una ricca varietà di specie animali e vegetali. Capo Rizzuto è molto rinomata per il mare, le spiagge e per la vicinanza con “Le Castella”, nota località turistico-balneare, nonché per la presenza del castello aragonese circondato dal mare, e dell’area archeologica di Capo Colonna a Crotone. L’immobile presenta un’ottima accessibilità veicolare attraverso Via Faro da cui si raggiunge il centro di Isola di Capo Rizzuto. Crotone dista 28 km dall’immobile.

06

07

Segnalamento marittimo con annessa residenza per faristi, ubicato nel Comune di Isola di Capo Rizzuto, nel tratto di mare compreso nell'Area Marina Protetta Capo Rizzuto. Il compendio, situato in prossimità del mare in un contesto paesaggistico di grande interesse, potrà essere riqualificato, secondo il modello di “lighthouse accommodation”, accogliendo attività turistiche, ricettive, ristorative, ricreative, didattiche e promozionali. L'immobile verrà concesso in uso a soggetti terzi senza essere alienato.

Via Faro - 88841 Crotone (KR)

Contatto

ICE - Italian Trade Agency

Richiedi informazioni

Pianta principale

Isola di Capo Rizzuto (KR) – Faro di Capo Rizzuto Pianta principale