Siete già iscritti? /

Foligno (PG) – Ufficio di Viale Cesare Battisti

Il compendio immobiliare, già centro di formazione del Gruppo FS, è situato in zona semicentrale di Foligno, terzo comune della Regione Umbria, per popolazione residente, dopo Perugia e Terni. L'immobile, sviluppa una superficie coperta di 4.600 m² (oltre 700 m² di balconi e terrazzi) con un'area scoperta di 1.250 m² e si trova a 200 metri dalla stazione ferroviaria di Foligno. L'edificio, per le sue caratteristiche e localizzazione, si presta ad essere utilizzato per molteplici funzioni.

indirizzo:
Viale Cesare Battisti, 34-36 - 06034 Foligno (PG)

Dettagli

Tipologie immobile
Edificio cielo/terra
Funzioni ammesse
Altre funzioni
SLP Totale (m²)
Anno di costruzione
1980
Stato manutentivo
Buono
Stato occupazionale
Libero
Profilo di rischio

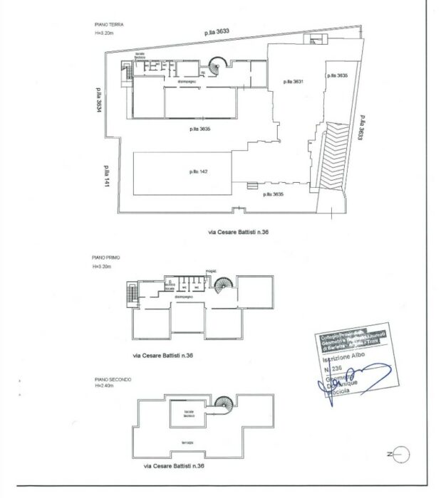
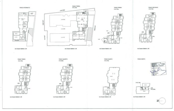
Il complesso immobiliare, destinato in passato a Centro di Formazione del Gruppo FS, è costituito da tre distinti edifici che sviluppano complessivamente una superficie lorda coperta di 4.600 m², oltre 700 m² di balconi e terrazzi, con un’area pertinenziale di 1.250 m².

Il Fabbricato 1, articolato su tre livelli fuori terra oltre un piano seminterrato, risulta così suddiviso: al piano terra si trovano le camere per portatori di handicap con servizi e luogo sicuro, ai due piani superiori le camere con i servizi e gli spazi comuni, mentre al piano seminterrato si trovano, ripostigli, depositi, cantine, servizi e locali tecnologici.

Il Fabbricato 2, articolato su due livelli fuori terra oltre piano i copertura, risulta così suddiviso: al livello terreno e primo si trovano, sale di formazione, sale riunioni, uffici, servizi oltre vani accessori e locali tecnici, mentre al livello di copertura si trova un vano tecnologico.

Il Fabbricato 3, articolato su sei livelli fuori terra oltre il piano di copertura ed un livello interrato, risulta così suddiviso: al livello terreno si trova una sala ricreativa, alcuni uffici, servizi, archivi e locali tecnologici, mentre ai piani superiori si trovano le camere con i servizi, magazzini, vani tecnologici e spazi comuni; al piano interrato si trovano archivi, magazzini, l’autorimessa e i locali tecnologici, mentre al livello di copertura si trova un locale tecnologico.

Gli edifici sono realizzati con struttura in muratura portante e in c.a., tamponamenti in muratura con intonaco (anche graffiato) tinteggiato e con rivestimento in pietra naturale o in c.a. a vista, zoccolo in pietra naturale; i solai sono realizzati in laterocemento, le coperture a terrazze accessibili, i serramenti esterni in metallo e in vetro, i divisori interni in muratura intonacata e tinteggiata, parzialmente rivestita in ceramica nei servizi igienici. Le pavimentazioni interne sono in marmo, granito, grès o ceramica, le porte interne sono in legno, legno-vetro o in alluminio, con maniglione antipanico e controsoffittature in cartongesso.

Il complesso immobiliare, risulta interamente recintato e dispone di due ingressi, ai civici 34 e 36 di via Cesare Battisti, con cancelli in ferro pedonali e carrai (anche automatizzati) e si trova in discrete condizioni di manutenzione e conservazione. L’area di pertinenza è pavimentata in porfido a spacco naturale e risulta in piccola parte coperta da pensilina metallica; sono inoltre presenti zone a verde, per lo più alberate.

Il compendio immobiliare è situato in zona semicentrale di Foligno (55.226 abitanti), terza città della regione Umbria per numero di abitanti dopo Perugia e Terni. La città si distende ai piedi dell’Appennino umbro-marchigiano, adagiata nella piana della confluenza dei fiumi Topino e Menotre. Il centro storico della città conserva edifici religiosi e palazzi signorili di assoluto pregio, quali il palazzo Comunale, di facciata neoclassica; palazzo Trinci, oggi Museo della Città; il Duomo di Foligno, palazzo Orfini, dove nel 1472 venne stampata la prima edizione della Divina Commedia e il palazzo del Podestà, sede della magistratura comunale dagli inizi del XIII secolo. La stazione ferroviaria, sulla tratta Roma-Perugia-Terni, si trova a 200 metri dall’immobile, mentre la SS-3 (Via Flaminia), importante arteria viaria che collega Roma con Fano, dista 3 km circa dall’immobile. La città di Perugia si trova a 30 km circa (25-30 minuti in auto), mentre Terni dista 55 km (45 minuti in auto).

 

Il compendio immobiliare, già centro di formazione del Gruppo FS, è situato in zona semicentrale di Foligno, terzo comune della Regione Umbria, per popolazione residente, dopo Perugia e Terni. L'immobile, sviluppa una superficie coperta di 4.600 m² (oltre 700 m² di balconi e terrazzi) con un'area scoperta di 1.250 m² e si trova a 200 metri dalla stazione ferroviaria di Foligno. L'edificio, per le sue caratteristiche e localizzazione, si presta ad essere utilizzato per molteplici funzioni.

Viale Cesare Battisti, 34-36 - 06034 Foligno (PG)

Contatto

ICE - Italian Trade Agency

Richiedi informazioni