Siete già iscritti? /

Genova (GE) – Villa Saredo Parodi

Palazzo nobiliare, noto come Casa Saredo Parodi, edificato nel XVI secolo, situata in zona semicentrale di Genova, nel quartiere Marassi, nei pressi della chiesa di Santa Margherita.

indirizzo:
via Marassi , 6 - 16142 Genova (GE)

Dettagli

Tipologie immobile
Edificio storico, Villa
Funzioni ammesse
Altre funzioni, Residenziale, Turistico ricettivo
Superficie territoriale (m²)
400 m²
SLP Totale (m²)
Anno di costruzione
XVI secolo circa
Stato manutentivo
Da valorizzare
Stato occupazionale
Libero
Profilo di rischio

Il Palazzo nobiliare, articolato su tre piani fuori terra ed un piano interrato, edificato nel corso del XVI secolo, custodisce affreschi di notevole interesse storico-artistico: nel salone d’ingresso e lungo lo scalone che conduce al piano nobile e alla loggia, conserva rilevanti affreschi con scene allegoriche, mentre nella cappella vi è un affresco di Valerio Castello raffigurante l’Incoronazione della Vergine. Altro affresco, di Domenico Fiasella (1589-1669), ispirato al mito di Diana ed Endimione, si trova nella volta del piano terreno. Dopo l’aggiornamento del PUC (Piano Urbanistico Comunale) l’immobile potrà essere destinato alle seguenti funzioni: servizi privati; strutture ricettive; residenziale; terziario avanzato. L’edificio ha notevole interesse per i seguenti aspetti: valore storico e architettonico; vicinanza al centro città; presenza di servizi e attività commerciali nell’area circostante

Lo stato manutentivo generale dell’immobile è discreto, tuttavia necessita di interventi di riqualificazione edile ed impiantistica.

Il compendio è situato nella zona residenziale di Marassi, zona semicentrale a nord di Genova, ben collegata con il suo centro storico. Il principale asse viario è costituito da Corso Sardegna e Corso De Stefanis, inoltre il quartiere è attraversato dalla strada statale 45 di Val Trebbia, che collega Genova a Piacenza. La stazione ferroviaria di Genova “Brignole” si trova a 3 km dalla zona, mentre il terminal dei Traghetti dista 4 km circa. Il casello “Genova Est” dell’autostrada A-12 che collega la città con Roma e Milano, dista 2 km circa dall’immobile, mentre l’aeroporto internazionale “Cristoforo Colombo” si trova a 15 km circa.

 

 

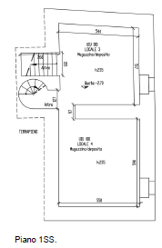
Piano 1 sotto strada
113 m²
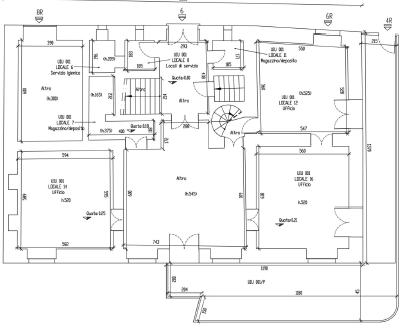
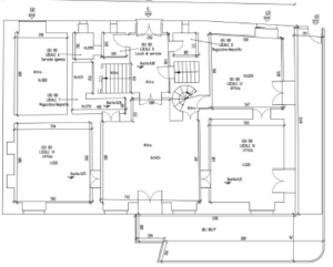
Piano terra + ammezzato
402 m²
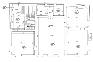
Piano 1 + ammezzato
328 m²
Piano 2
227 m²
Puc - SIS-S
Legenda PUC

Palazzo nobiliare, noto come Casa Saredo Parodi, edificato nel XVI secolo, situata in zona semicentrale di Genova, nel quartiere Marassi, nei pressi della chiesa di Santa Margherita.

Questo immobile fa parte del progetto:

MIPIM 2025

Procedure

Vedi dettagli contatto per manifestazioni di interesse e simili

via Marassi , 6 - 16142 Genova (GE)

Contatto

ICE - Italian Trade Agency

Richiedi informazioni

Pianta principale

Genova (GE) – Villa Saredo Parodi Pianta principale