Siete già iscritti? /

Lavena Ponte Tresa (VA)- Ex Caserma L. Moi

Compendio immobiliare situato nel comune di Lavena Ponte Tresa, in provincia di Varese. La cittadina lombarda, che si affaccia sul lago di Lugano, si trova al confine con la Svizzera. L'edificio, costruito negli anni '60 per ospitare una caserma della Guardia di Finanza, risulta dismesso da tempo e si trova in scadenti condizioni di manutenzione.

indirizzo:
Marconi , 63 - 21037 Lavena Ponte Tresa (VA)

Dettagli

Tipologie immobile
Caserma
Funzioni ammesse
Altre funzioni, Parcheggio, RSA/Senior Housing, Student House
Superficie territoriale (m²)
2.800 m²
SLP Totale (m²)
GLA totale
Anno di costruzione
Ante '67
Stato manutentivo
Mediocre - Da valorizzare
Stato occupazionale
Libero
Profilo di rischio

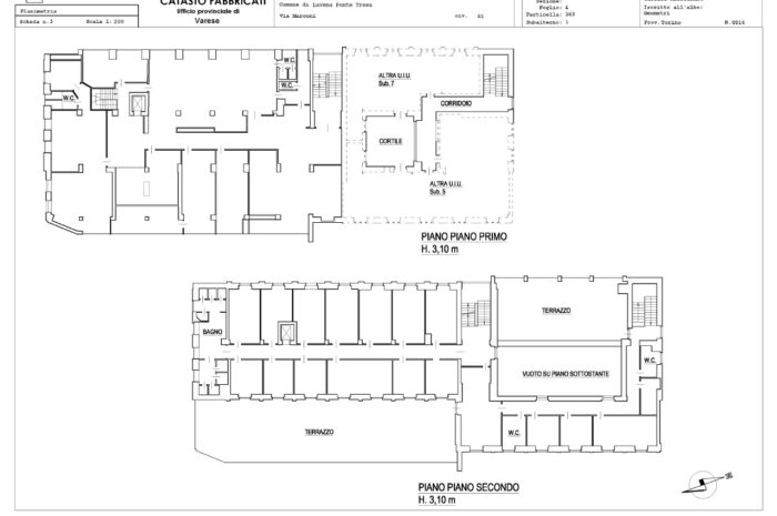
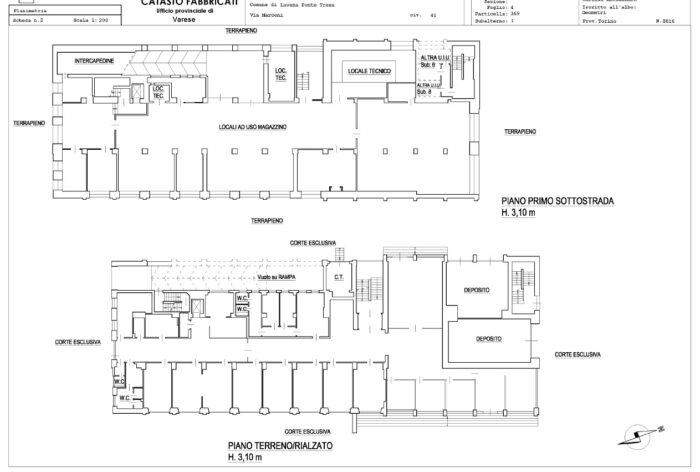
Il fabbricato, realizzato sul finire degli anni’60, è articolato su tre e su cinque piani, oltre ad un livello interrato. L’edificio è interamente recintato. Il perimetro di proprietà include inoltre un piazzale esterno alla recinzione adibito a parcheggio. L’immobile è stato costruito per essere adibito a caserma della Guardia di Finanza. In considerazione del periodo di costruzione, non si esclude la presenza di elementi inquinanti a livello ambientale, ad oggi non noti. Il bene è stato inserito nell’elenco dei beni dismessi con criticità previsti dalla Legge Regionale 12/2005. Con D.C.C. n. 21 del 25.07.2024 è stata approvata la variante al Piano dei Servizi per consentire il cambio di destinazione, purché rientri in destinazioni di pubblica utilità. Le aree sono soggette a Vincolo Paesaggistico.

L’immobile è situato in zona periferica di Lavena Ponte Tresa (5.635 abitanti), nella provincia di Varese al confine con la Svizzera. Il compendio si trova lungo Via Marconi (SP-61), strada che conduce a Porto Ceresio, in adiacenza ad edifici scolastici ed alla sede del Municipio. Il comune si affaccia sul Lago di Lugano, specchio d’acqua che crea un confine naturale fra Italia e Svizzera, e si trova in adiacenza con il quasi omonimo paesino svizzero di Ponte Tresa, da cui è separato proprio dal fiume Tresa e unito da un ponte doganale. La città di Varese dista 22 km dall’immobile (40-45 minuti in auto), mentre nel paese di Ponte Tresa si trova la stazione ferroviaria che consente di raggiungere la città di Lugano, collegata con Varese mediante la linea regionale S50 “Malpensa-Varese-Lugano-Bellinzona” gestita da Trenord. L’aeroporto internazionale di Milano-Malpensa (2° scalo aeroportuale italiano per traffico passeggeri) dista 66 km dall’immobile (60-70 minuti in auto), mentre la tangenziale di Varese, che consente l’immissione sulla rete autostradale nazionale, si trova a 28 km (45 minuti in auto).

SEMINTERRATO
910 m²
TERRA
910 m²
PRIMO
910 m²
SECONDO
600 m²
TERZO
440 m²
QUARTO
440 m²
SOTTOTETTO
440 m²

Compendio immobiliare situato nel comune di Lavena Ponte Tresa, in provincia di Varese. La cittadina lombarda, che si affaccia sul lago di Lugano, si trova al confine con la Svizzera. L'edificio, costruito negli anni '60 per ospitare una caserma della Guardia di Finanza, risulta dismesso da tempo e si trova in scadenti condizioni di manutenzione.

Interesse culturale

www.investinitalyrealestate.com mette in contatto domanda e offerta. L'alienazione o concessione onerosa del bene potrà avvenire solo previa conclusione di procedura verifica interesse culturale e/o autorizzazione ministeriale D.Lgs 42 2004 alla Proprietà.

Marconi , 63 - 21037 Lavena Ponte Tresa (VA)

Contatto

ICE - Italian Trade Agency

Richiedi informazioni

Pianta principale

Lavena Ponte Tresa (VA)- Ex Caserma L. Moi Pianta principale