Siete già iscritti? /

Madesimo (SO) – Ex Dogana Montespluga

Edificio di tre piani fuori terra e piano interrato che nasce come caserma e posto di blocco di frontiera, ubicato a 1.908 metri di altitudine nel villaggio alpino di Montespluga in prossimità del valico con la Svizzera.

indirizzo:
Passo dello Spluga, snc - 23024 Madesimo (SO)

Dettagli

Tipologie immobile
Edificio cielo/terra
Funzioni ammesse
Residenziale, Turistico ricettivo
Superficie territoriale (m²)
487 m²
SLP Totale (m²)
Anno di costruzione
1958
Stato manutentivo
Da valorizzare
Stato occupazionale
Libero

Fabbricato di tre piani fuori terra e piano semiinterrato completo di area pertinenziale utilizzata quale parcheggio nonché di garitta un tempo utilizzata per il presidio del valico.

L’edificio è costituito da struttura portante in muratura, tetto a doppia falda, facciate in pietra a vista e lamiera grecata. Le pareti degli ambienti interni sono intonacate e rivestite con perline in legno e infissi in legno a doppia anta a vetro singolo con oscuranti in metallo. L’immobile è dotato di riscaldamento a gasolio ed è fornito di impianto elettrico, impianto antincendio con estintore a polvere e impianto idrico.

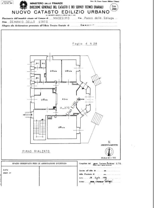
Si compone di n.7 ambienti al piano seminterrato; n. 4 ambienti con ingresso e servizi igienici al piano terra; n. 5 ambienti, ingresso e servizi igienici al piano primo ed infine, al piano secondo è caratterizzato da sottotetto con altezza al colmo di 4,00 metri e in gronda di 0,75 metri composto da n. 5 ambienti con relativi servizi igienici e ripostigli.

L’ immobile è inserito nella zona classificata come T6 – tessuto turistico alberghiero, caratterizzata dalla presenza di attività turistiche alberghiere e dove il regolamento urbanistico favorisce destinazioni ricettive (alberghi, pensioni etc) e altri servizi accessori all’attività ricettiva.

L’immobile, che nasce come posto di presidio di frontiera, è ubicato al valico del Passo dello Spluga, uno dei più importanti valichi alpini al confine tra Italia e Svizzera, noto per gli stupendi scenari e paesaggi naturali che lo circondano attraendo sulla zona un’assidua frequentazione scialpinistica.

Si pone a 1908 metri di altitudine e a circa 14 km dalle rive del lago artificiale del pittoresco villaggio di  Montespluga, in uno dei percorsi escursionistici culturali  transfrontalieri più frequentati soprattutto dai turisti provenienti dai cantoni della Svizzera tedesca, dalla Germania e in genere dal Nord Europa, che vi transitano per raggiungere rinomate località di villeggiatura estive e invernali quali Madesimo sul versate italiano e Splugen su quello svizzero.

Piano terra
165,30
Piano primo
165,30
Piano secondo
134,62
Piano interrato
165,30

Edificio di tre piani fuori terra e piano interrato che nasce come caserma e posto di blocco di frontiera, ubicato a 1.908 metri di altitudine nel villaggio alpino di Montespluga in prossimità del valico con la Svizzera.

Procedure

Vendita della piena proprietà con bando pubblico

Passo dello Spluga, snc - 23024 Madesimo (SO)

Contatto

ICE - Italian Trade Agency

Richiedi informazioni

Pianta principale

Madesimo (SO) – Ex Dogana Montespluga Pianta principale