Siete già iscritti? /

Mira (VE) – Villa Principe Pio

Villa d'epoca costruita nel XVIII secolo dalla famiglia "Principe Pio", situata in zona centrale del comune di Mira (VE), in prossimità della riva sinistra del Naviglio del Brenta. L'immobile, di elevato interesse storico-architettonico, è vincolato dal MIBACT. Utilizzato in passato per funzioni pubbliche, l'immobile, per le sue caratteristiche e localizzazione, ben si presta ad essere utilizzato con funzioni residenziali.

indirizzo:
Via Don Giovanni Minzoni, 26 - 30034 Mira (VE)

Dettagli

Tipologie immobile
Edificio storico, Villa
Funzioni ammesse
Residenziale
Superficie territoriale (m²)
1.770 m²
SLP Totale (m²)
GLA totale
Anno di costruzione
XVIII secolo
Stato manutentivo
Buono
Stato occupazionale
Libero
Profilo di rischio

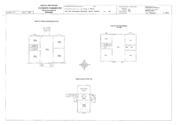
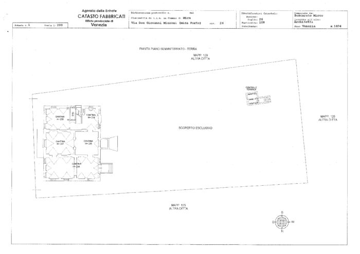
L’immobile, tipico esempio di Villa Patrizia Veneta, consiste in una casa dominicale tripartita, censita già nel 1740 (secondo il Boschetti, i lavori erano certamente conclusi nel 1729). La villa, che segue la classica tipologia della casa veneziana con sala passante (“portego”), che disimpegna camere e locali di servizio ai lati, è articolata su quattro livelli, di cui uno seminterrato, per una superficie lorda complessiva di 823 m²; completa la proprietà un’area esterna di pertinenza esclusiva ad uso giardino, di 1.525 m², dove si trova un piccolo manufatto adibito a centrale termica. Nel salone centrale, sono apprezzabili i sovra-porta in stucco ed altri elementi decorativi parietali, oltre allo strappo d’affresco raffigurante “Apollo e le Muse” attribuito al Bambini, ricollocato a soffitto nel 2009.

Acquistata dalla Provincia di Venezia nel 1925, la villa in passato ospitò anche la locale Caserma dei Carabinieri e la sede dell’Azienda di Promozione Turistica. L’immobile è libero da persone e cose a seguito dell’avvenuta riconsegna (2013) da parte del Comune di Mira, cui era concesso in uso per l’attività didattico-museale della Riviera del Brenta.

L’immobile è soggetto alla disciplina di cui al Decreto Legislativo 22 gennaio 2004 n. 42 (artt. 10 e 12), e ricade in area soggetta a vincolo archeologico.

La Villa Principe Pio è situata nel comune di Mira (37.576 abitanti), compreso nel territorio di Città Metropolitana di Venezia (836.916 abitanti), nella Regione Veneto. L’immobile si trova in zona centrale, in località “Mira Porte”, sulla riva sinistra del Naviglio, prospicente alla strada Provinciale Naviglio Brenta, lungo la via Don Minzoni, 26. La zona si caratterizza per la presenza di edifici storici, per lo più residenziali, e risulta inserita nel contesto paesaggistico della “Riviera del Brenta”; in tale ambito l’immobile risulta assoggettato a specifiche disposizioni di tutela dello strumento urbanistico comunale (il prospetto principale, su via Don Minzoni, guarda infatti il canale). Il Naviglio, rappresentava in passato un collegamento fluviale navigabile con la città di Padova molto utilizzato, sulle cui sponde i veneziani iniziarono a edificare, dopo il 1405, sontuosi palazzi per la villeggiatura. La zona è ben servita dai mezzi di trasporto, facilmente accessibile con le autovetture private, e nelle vicinanze si trovano tutti i principali servizi. Il comune di Mira dista 22 km da Venezia e 30 km da Padova (rispettivamente 25 e 35 minuti in auto). Il casello “Mira-Dolo-Oriano” della Tangenziale di Venezia dista 5 km circa dall’immobile (6 minuti in auto) e consente l’immissione nella rete autostradale nazionale. L’aeroporto internazionale “Marco Polo” di Venezia, si trova a 25 km dalla zona (30-40 minuti in auto).

C.T.
8.65 m²
Piano sottostrada - cantina
246,79
Piano terra rialzato
237,66
Piano primo
237,66
Piano secondo sottotetto
68,35
Soffitta
33 m²

Villa d'epoca costruita nel XVIII secolo dalla famiglia "Principe Pio", situata in zona centrale del comune di Mira (VE), in prossimità della riva sinistra del Naviglio del Brenta. L'immobile, di elevato interesse storico-architettonico, è vincolato dal MIBACT. Utilizzato in passato per funzioni pubbliche, l'immobile, per le sue caratteristiche e localizzazione, ben si presta ad essere utilizzato con funzioni residenziali.

Procedure

Vendita della piena proprietà con confronto competitivo

Via Don Giovanni Minzoni, 26 - 30034 Mira (VE)

Contatto

ICE - Italian Trade Agency

Richiedi informazioni

Pianta principale

Mira (VE) – Villa Principe Pio Pianta principale