Siete già iscritti? /

Monteleone di Fermo (FM) – Villa Felice

Pregevole residenza signorile di fine settecento ubicata nel borgo medioevale di Monteleone di Fermo. Il compendio è attualmente oggetto di numerosi interventi a cura della proprietà, per essere adibito a struttura turistico-ricettiva, con ristorante, piscina e sala reception. L'immobile non verrà alienato, ma verrà valorizzato mediante una concessione d'uso di lunga durata.

indirizzo:
Via P. Consolini, 41 - Monteleone di Fermo (FM)

Dettagli

Funzioni ammesse
Direzionale, Residenziale
SLP Totale (m²)
Numero unità
2
Anno di costruzione
Edificato alla fine del 1700. Ampliato negli anni ’30. Ristrutturato sostanzialmente negli anni ’80. Ultima ristrutturazione, parziale, in corso di ultimazione.
Stato manutentivo
Buono
Stato occupazionale
Libero
Profilo di rischio

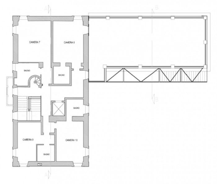
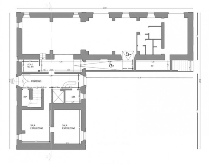
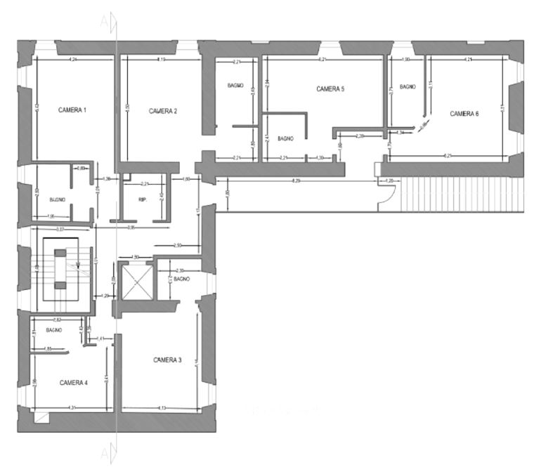
Palazzetto storico situato nel borgo antico di Monteleone di Fermo, edificato alla fine del ‘700 con impianto planimetrico ad L. Il corpo con affaccio sulla strada principale, più lungo, è articolato su tre livelli fuori terra oltre piano interrato, mentre quello più stretto è suddiviso su due piani fuori terra, con ampia terrazza praticabile. la superficie coperta è di 980 m², oltre 114 m² di terrazza e 1.900 m² di corte esterna.

La realizzazione di Villa Felice si ricollega al più ampio progetto “Marche di Charme: Turismo a 5 sensi” proposto dall’Assessorato al Turismo della Regione Marche, dove charme è atmosfera, ma anche anagramma di Marche. Si prende in considerazione una partnership innovativa ed in una nuova ottica di valorizzazione del territorio, all’insegna dell’esperienza motivazionale e del benessere multisensoriale.

Il fabbricato è attualmente oggetto di diversi interventi di ristrutturazione per adibirlo a struttura turistico-ricettiva, che sono in corso d’opera:

  • la realizzazione di nove camere di notevoli dimensioni con tutti i servizi;
  • la struttura sarà dotata di sala da pranzo e relativo spazio per la cucina;
  • presenza al piano terra (lato destro) di una sala reception o lettura;
  • entro giugno 2024 sarà realizzata la piscina all’interno del parco antistante ad uso esclusivo della struttura;
  • realizzazione di un parco retrostante la dimora.

Il compendio è ubicato nel borgo medievale di Monteleone di Fermo, nel cuore delle Marche, tra Fermo e San Benedetto del Tronto, a 30 km dal Mare. Il centro storico, oltre alla Villa Felice, racchiude ulteriori testimonianze artistiche e architettoniche di varie epoche, dalla torre duecentesca alla chiesa parrocchiale di San Giovanni Battista alle mura di cinta medievali, ormai quasi scomparse, alla chiesa della Madonna della Misericordia. Il borgo dista 40 minuti dalla costa, ricca di località balneari molto rinomate, tra cui ricordiamo Porto Sant’elpidio, Civitanova Marche, Porto San Giorgio e San Benedetto del Tronto. La città di Ancona, con il porto turistico e l’aeroporto, dista invece 94 km. Nella zona sono inoltre, con i loro stabilimenti ed outlet commerciali, importanti firme del made in Italy, quali Tod’s, Hogan, Prada, Nero Giardini, ecc.

 

Piano interrato
m² 45 netti 61 lordi
Piano Terra
m² 339 (+ m² 35 del fabbricato di pertinenza)
Piano Primo
m² 342
Piano Secondo
m² 203 Terrazza scoperta - 114 m²
Corte esterna
1.900 m²

Pregevole residenza signorile di fine settecento ubicata nel borgo medioevale di Monteleone di Fermo. Il compendio è attualmente oggetto di numerosi interventi a cura della proprietà, per essere adibito a struttura turistico-ricettiva, con ristorante, piscina e sala reception. L'immobile non verrà alienato, ma verrà valorizzato mediante una concessione d'uso di lunga durata.

Procedure

Concessione di valorizzazione con bando pubblico

Via P. Consolini, 41 - Monteleone di Fermo (FM)

Contatto

ICE - Italian Trade Agency

Richiedi informazioni

Pianta principale

Monteleone di Fermo (FM) – Villa Felice Pianta principale