Siete già iscritti? /

Oppido Mamertina (RC) – Ex Pretura

L’edificio, ex Pretura, è situato nel centro abitato di Oppido Mamertina, comune della Città Metropolitana di Reggio Calabria. Il territorio collinare in cui sorge l'immobile, si trova a metà strada tra la Piana di Gioia Tauro e le zone costiere ed il Parco dell'Aspromonte, in un contesto di notevole interesse paesaggistico. Il fabbricato, che si trova in scadenti condizioni di manutenzione, può essere valorizzato con funzioni ricettive, mediante una concessione d'uso pluriennale, senza essere alienato.

indirizzo:
VIA ALFONSO LA MARMORA, 16 - 89014 Oppido Mamertina (RC)

Dettagli

Tipologie immobile
Edificio cielo/terra
Funzioni ammesse
Turistico ricettivo
Superficie territoriale (m²)
750 m²
SLP Totale (m²)
GLA totale
Anno di costruzione
XIX
Stato manutentivo
Mediocre - Da valorizzare
Stato occupazionale
Libero
Profilo di rischio

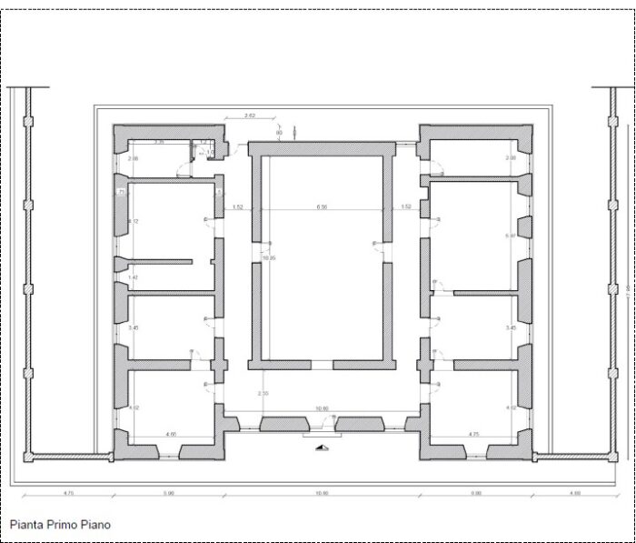
L’edificio rappresenta un rilevante esempio di architettura post-terremoto del 1908, quando edifici pubblici di questo tipo contribuivano in modo concreto alla qualificazione degli spazi urbani. Il fabbricato occupa, insieme all’ex Ufficio del Registro, un intero isolato delimitato da quattro strade ortogonali. L’immobile si sviluppa su un unico piano fuori terra e presenta un impianto planimetrico e in alzato improntato a simmetria e rigore geometrico. Al centro si trova il corpo principale, la sala delle udienze, attorno alla quale si articola, su tre lati, un corridoio con gli uffici privati, posti ai lati dell’ingresso centrale, con tetto di copertura piana con terrazzo e lucernario; l’edificio dispone di un cortile recintato di circa 380 m². Il linguaggio architettonico, sobrio e misurato, esprime un classicismo essenziale che conferisce all’edificio un forte valore simbolico e istituzionale.

 

 

L’immobile è situato nell’abitato urbano di Oppido Mamertina (4.678 abitanti), comune facente parte della Città Metropolitana di Reggio Calabria, che occupa una posizione strategica nella fascia cosiddetta di “pre-parco”, una zona cerniera tra la costa e le aree interne montane. Oppido fa parte del Parco Antropico del Mamerto: i parchi antropici rappresentano una nuova forma di tutela e valorizzazione del territorio, volta a integrare risorse naturalistiche, culturali, turistiche e storico-architettoniche. Il territorio, con il suo patrimonio storico e paesaggistico, rappresenta un punto di accesso privilegiato al Parco Nazionale dell’Aspromonte (istituito formalmente nel 1994 e inserito dal 2021 nel Global Geoparks Network dell’UNESCO), che si estende interamente nella provincia di Reggio Calabria, tra il Mar Ionio e il Mar Tirreno, luogo ideale per itinerari naturalistici, culturali e spirituali. La sua inclusione nei progetti di valorizzazione del territorio promossi a livello regionale e nazionale ne rafforza il ruolo di comunità-guida per un turismo sostenibile. Il territorio si trova a 64 km circa da Reggio Calabria (50 minuti in auto) e 100 km da Lamezia Terme (80-90 minuti in auto). L’uscita “Gioia Tauro” dell’autostrada A-2 (Salerno-Reggio Calabria) dista 20 km circa dalla zona (25 minuti in auto).

 

 

 

unico
383 m²

L’edificio, ex Pretura, è situato nel centro abitato di Oppido Mamertina, comune della Città Metropolitana di Reggio Calabria. Il territorio collinare in cui sorge l'immobile, si trova a metà strada tra la Piana di Gioia Tauro e le zone costiere ed il Parco dell'Aspromonte, in un contesto di notevole interesse paesaggistico. Il fabbricato, che si trova in scadenti condizioni di manutenzione, può essere valorizzato con funzioni ricettive, mediante una concessione d'uso pluriennale, senza essere alienato.

Questo immobile fa parte del progetto:

Agenzia del Demanio- concessione di valorizzazione

VIA ALFONSO LA MARMORA, 16 - 89014 Oppido Mamertina (RC)

Contatto

ICE - Italian Trade Agency

Richiedi informazioni

Pianta principale

Oppido Mamertina (RC) – Ex Pretura Pianta principale