Siete già iscritti? /

Venezia – Palazzo Donà Balbi

Palazzo settecentesco affacciato sul Canal Grande di Venezia, città tra le più visitate dai turisti di tutto il mondo. L’immobile, denominato Palazzo “Donà Balbi”, è costituito da tre nuclei intercomunicanti tra loro, con ingressi indipendenti da Riva di Biasio e da Calle Sagredo, ed prospetto principale sul Canal Grande, nel Sestriere di Santa Croce.

indirizzo:
Riva di Biasio, 1299/a - 30135 Venezia (VE)

Dettagli

Tipologie immobile
Altre tipologie
Funzioni ammesse
Direzionale
Superficie territoriale (m²)
2.230 m²
SLP Totale (m²)
GLA totale

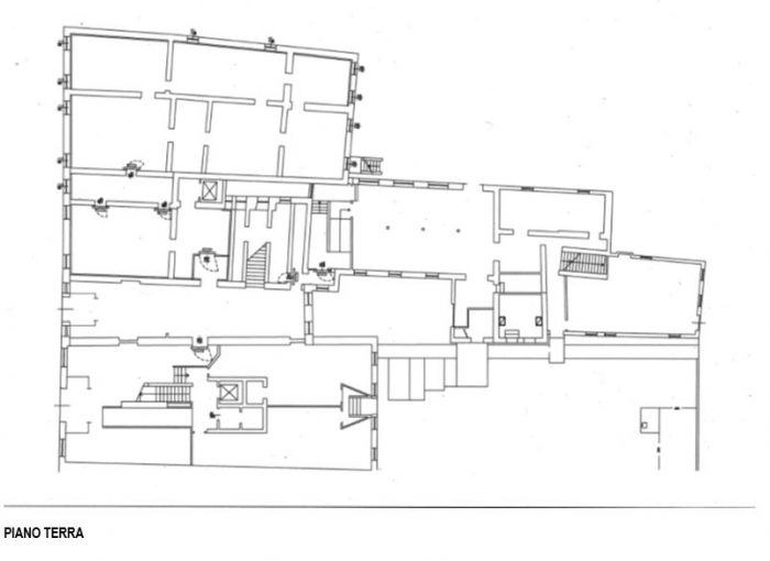
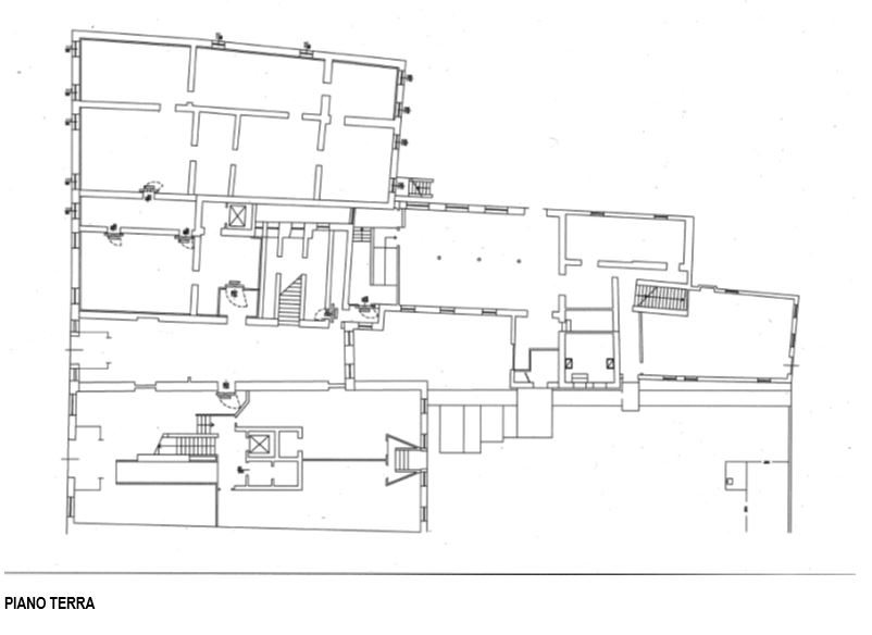
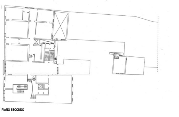
Palazzo “Donà Balbi” è costituito da tre nuclei che si differenziano per altezze e dimensioni, intercomunicanti tra loro e con ingressi indipendenti da Riva di Biasio e da Calle Sagredo. Il nucleo centrale del complesso immobiliare, che si può ricondurre alla tipologia della tipica dimora veneziana, si sviluppa su quattro piani fuori terra, ed è stato costruito presumibilmente agli inizi del 1700; l’edificio presenta elementi di notevole pregio: affreschi, stucchi policromi in rilievo, pareti tappezzate, finestre in legno con vetro piombato, inconografie e decorazioni dei pavimenti alla veneziana. Il piano terra di questa parte del Palazzo è destinata per la maggior parte ad archivio, mentre i piani superiori e gli altri blocchi sono adibiti ad uso uffici. Il collegamento tra i piani è garantito, oltre che dalla scala in pietra naturale, anche dalla presenza di ascensori. L’immobile a metà degli anni ’80 è stato oggetto di un completo restauro e risanamento conservativo concluso agli inizi del 1990, e più recentemente sono stati eseguiti nuovi interventi finalizzati all’adeguamento sotto il profilo della sicurezza, della prevenzione incendi e dell’impianto idraulico.
Per ulteriori informazioni: http://www.patrimonio.cittametropolitana.ve.it/immobile/palazzo-don%C3%A0-balbi

Il compendio immobiliare è localizzato nella laguna di Venezia (264.579 abitanti), capoluogo dell’omonima provincia (858.198 abitanti) e della Regione Veneto (4.927.596 abitanti). L’immobile è situato nel Sestriere Santa Croce, con affaccio principale sul Canal Grande, a breve distanza dal Casinò di Venezia. La zona in cui è ubicato l’immobile è caratterizzata dalla presenza di immobili di pregio, a destinazione prevalentemente ricettiva o direzionale, ed è ben collegata alle zone strategiche della città anche grazie al trasporto pubblico su battello, con l’imbarcadero “Riva de Blasio” a 50 mt dall’immobile. La zona si trova a breve distanza dai monumenti più noti della città veneziana, 2 km da Piazza San Marco, 1 km circa dal Ponte di Rialto. La Stazione ferroviaria di Venezia Santa Lucia, che garantisce collegamenti con le principali città italiane, si trova a 600 mt circa dall’immobile.

 

 

 

Palazzo settecentesco affacciato sul Canal Grande di Venezia, città tra le più visitate dai turisti di tutto il mondo. L’immobile, denominato Palazzo “Donà Balbi”, è costituito da tre nuclei intercomunicanti tra loro, con ingressi indipendenti da Riva di Biasio e da Calle Sagredo, ed prospetto principale sul Canal Grande, nel Sestriere di Santa Croce.

Procedure

Vendita della piena proprietà con bando pubblico

Riva di Biasio, 1299/a - 30135 Venezia (VE)

Contatto

ICE - Italian Trade Agency

Richiedi informazioni

Pianta principale

Venezia – Palazzo Donà Balbi Pianta principale