Siete già iscritti? /

Milano – Palazzo Pirelli

Aggiudicato

Complesso immobiliare ad uso direzionale situato in prossimità del quartiere Porta Nuova, costituito da una torre di 90 mt di altezza e da un corpo basso ed allungato disposto "a ponte" su via Melchiorre Gioia. L'edificio, nato quale sede degli uffici del Comune di Milano, è attualmente inutilizzato. L'immobile, per la sua collocazione in un quartiere di recente riqualificazione, si presta ottimamente per essere valorizzato quale moderna struttura terziaria e direzionale.

indirizzo:
Via Giovanni Battista Pirelli, 39 - 20124 Milano (MI)

Dettagli

Tipologie immobile
Altre tipologie
Funzioni ammesse
Direzionale
SLP Totale (m²)
GLA totale
Anno di costruzione
1960
Stato manutentivo
Da valorizzare
Stato occupazionale
Occupato
Profilo di rischio

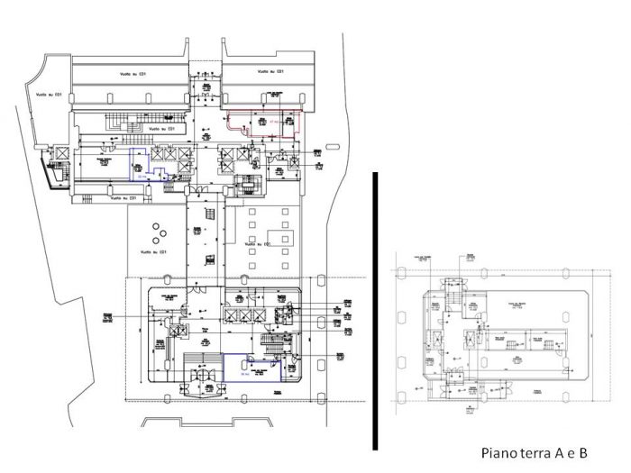
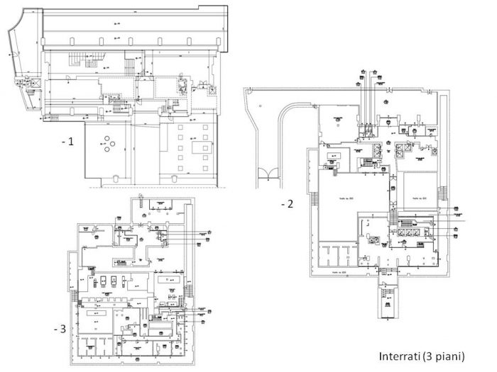
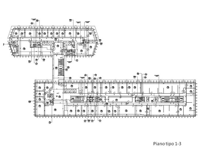
L’immobile, realizzato negli anni ’60 dal Comune di Milano, è costituito da due corpi di fabbrica, una torre di 28 piani fuori terra ed un corpo basso che si sviluppa su via Melchiorre Gioia, articolato su 7 piani fuori terra, con un ponte di collegamento tra i due edifici realizzato con struttura in acciaio che si sviluppa per tutti i piani fuori terra del corpo più basso. Gli spazi interrati, articolati su tre livelli per 24.000 m² e destinati ad autorimessa per 727 posti auto, sono comuni ad entrambi i corpi di fabbrica, e sono localizzati al di sotto della Piazza Luigi Einaudi. L’edificio più alto sviluppa una superficie di 750 m² per piano mentre quello più basso sviluppa una superficie di 1.760 m² circa per piano. La copertura è a falde inclinate al di sotto delle quali è stato ricavato un sottotetto non abitato. A livello urbanistico il complesso è individuato, sulla base del vigente PGT, nell’ambito del tessuto urbano di recente formazione di cui all’art. 2.1.a.ii delle norme di attuazione del Piano delle Regole.

L’immobile è ubicato in zona semi-centrale del Comune di Milano (1.337.155 abitanti), Capoluogo dell’omonima Provincia (3.196.825 abitanti), 1° comune della Regione Lombardia e 2° comune Italiano per popolazione residente dopo Roma Capitale. L’immobile è situato lungo il viale che collega i Bastioni di Porta Nuova al quartiere di Porta Garibaldi, a pochi minuti dalla stazione ferroviaria di Porta Garibaldi e dalla stazione Centrale di Milano. L’edificio si trova in prossimità di via Melchiorre Gioia, strada di rilevante importanza viabilistica classificata quale strada urbana interquartiere di classe C, ed è inoltre servito dalla metropolitana linea 2 “Verde” fermata “Gioia”. L’edificio è ubicato nelle immediate vicinanze dell’area oggetto di un recente intervento di riqualificazione urbana nota come Porta Nuova, dello storico quartiere Isola, e del nuovo Palazzo della Regione Lombardia, che ospita gli uffici regionali ed anche spazi espositivi e commerciali, sale per convegni, biblioteche e archivi, giardini, un auditorium. Piazza Duomo si trova a 5 km dall’immobile, mentre l’Università “Bocconi” dista 6 km circa. L’aeroporto internazionale di Milano-Linate (5° scalo aeroportuale italiano con 9,5 milioni di passeggeri) dista 9 km circa dall’immobile.

 

SLP complessiva corpo alto
18990 m²
SLP complessiva corpo basso
6074 m²
SLP collegamento corpo basso
393 m²
SLP Piani interrati
4458 m²
Autorimessa
24600 m²
Piano delle regole PGT Comune di Milano

Complesso immobiliare ad uso direzionale situato in prossimità del quartiere Porta Nuova, costituito da una torre di 90 mt di altezza e da un corpo basso ed allungato disposto "a ponte" su via Melchiorre Gioia. L'edificio, nato quale sede degli uffici del Comune di Milano, è attualmente inutilizzato. L'immobile, per la sua collocazione in un quartiere di recente riqualificazione, si presta ottimamente per essere valorizzato quale moderna struttura terziaria e direzionale.

Via Giovanni Battista Pirelli, 39 - 20124 Milano (MI)

Pianta principale

Milano – Palazzo Pirelli Pianta principale