Siete già iscritti? /

Poggio Imperiale (FG) – Conservificio “Passo del Compare”

Compendio immobiliare avente destinazione d'uso industriale-produttivo, situato in zona agricola, ad ovest dell'abitato urbano di Poggio Imperiale, in provincia di Foggia. Lo stabilimento, in disuso ormai da alcuni anni, è realizzato su un lotto di terreno di 4,5 ettari, con ulteriori 10 ettari di terreni agricoli, adiacenti lo stabilimento. L’intero perimetro è recintato con muretto in Cls armato, sovrastante inferriata e recinzione a maglia metallica. La proprietà è accessibile mediante un ingresso pedonale e carrabile posto ad Est, parallelo alla SS n.16.

indirizzo:
Strada Statale 16, km 629,400, snc - 71010 Poggio Imperiale (FG)

Dettagli

Tipologie immobile
Edificio cielo/terra
Funzioni ammesse
Logistico/produttivo
SLP Totale (m²)
Numero unità
Lotto unico
Anno di costruzione
Anni '60
Stato manutentivo
Mediocre
Stato occupazionale
Libero
Profilo di rischio

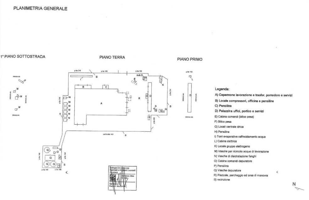
Il compendio immobiliare, è costituito da più corpi di fabbrica: il capannone principale, ad uso produttivo, una palazzina uffici articolata su due livelli, posta in prossimità dell’ingresso dello stabilimento, un fabbricato adibito ad alloggio del custode oltre a piccoli manufatti che ospitano locali tecnici (centrale idrica, cabina elettrica e cabina comandi).

Lo stabilimento principale è realizzato con struttura intelaiata con elementi prefabbricati in C.A. precompresso, copertura con tegolini in C.A. vibro-compressi e tamponamenti perimetrali in elementi prefabbricati. L’opificio è composto da un’area open-space, zona magazzino e dalla cabina elettrica. Le finiture interne sono di tipo standard con pavimentazione in battuta di cemento.
Il corpo D (Palazzina Uffici, Portico e Servizi) risulta articolato su due livelli, così suddiviso: al piano terra si trova la zona mensa, la cucina e l’area spogliatoi, con finiture standard quali pavimenti in ceramica e graniglia di marmo, infissi interni in legno ed infissi esterni in metallo e vetro singolo; al piano primo sono dislocati gli ambienti ad uso ufficio, accessibili attraverso il corridoio di distribuzione, e presentato le medesime caratteristiche manutentive e di finitura del piano terra. Tutti gli ambienti, si trovano in mediocri condizioni di manutenzione, con infiltrazione dal solaio di copertura. La centrale idrica è una struttura prefabbricata su cordolo in Cls, in cui è presente l’impianto antincendio e vasche di raccolta. Le tre torri evaporative e di raffreddamento acqua ad oggi risultano in disuso. L’immobile risulta regolarmente allacciato alla rete idrico-fognante, ad oggi in disuso. Il manufatto che ospita la cabina elettrica dispone di due accessi, uno dei quali riservato al personale ENEL, mentre il secondo consente l’accesso alle linee di media tensione, all’area trasformatori e ai quadri di comando dell’impianto elettrico. L’alloggio del custode, censito al subalterno 2, è realizzato in C.A., in pessimo stato manutentivo. La proprietà è completata da due unità collabenti dirute, censite catastalmente alle particelle 216-217, e da un’area scoperta adibita a piazzale, parcheggio ed area di manovra (di circa 17.000 m²); sono inoltre presenti 16 lotti di terreno agricolo, per una superficie complessiva di 145.764 m².

L’immobile è situato in zona agricola del Comune di Poggio Imperiale (2.710 abitanti), in provincia di Foggia. La zona in cui è situato il sito industriale presenta un’ottima accessibilità veicolare, con la SS-16 (Adriatica), principale dorsale stradale adriatica che collega Otranto con Padova (oltre 1.000 km), che transita in prossimità dell’immobile. Il casello “Poggio Imperiale” sull’autostrada A-14 (Adriatica), dista 15 km circa dall’immobile (15 minuti in auto). La costa pugliese dista 30 km circa dall’immobile, mentre l’Aeroporto “Karol Wojtyla” di Bari Palese (10° scalo aeroportuale italiano con 6,2 milioni di passeggeri nel 2022), si trova a 165 km circa dalla zona (90-100 minuti in auto).

 

Compendio immobiliare avente destinazione d'uso industriale-produttivo, situato in zona agricola, ad ovest dell'abitato urbano di Poggio Imperiale, in provincia di Foggia. Lo stabilimento, in disuso ormai da alcuni anni, è realizzato su un lotto di terreno di 4,5 ettari, con ulteriori 10 ettari di terreni agricoli, adiacenti lo stabilimento. L’intero perimetro è recintato con muretto in Cls armato, sovrastante inferriata e recinzione a maglia metallica. La proprietà è accessibile mediante un ingresso pedonale e carrabile posto ad Est, parallelo alla SS n.16.

Questo immobile fa parte del progetto:

MIPIM 2021

Strada Statale 16, km 629,400, snc - 71010 Poggio Imperiale (FG)

Contatto

ICE - Italian Trade Agency

Richiedi informazioni

Pianta principale

Poggio Imperiale (FG) – Conservificio “Passo del Compare” Pianta principale