Siete già iscritti? /

Roma – Villa Spada “ex Motulesi”

Il complesso è sito nel quartiere “Nuovo Salario”, nell’ambito dello scalo ferroviario di Roma-Smistamento, una zona periferica ricadente nel quadrante settentrionale del Comune di Roma, a circa 10 km dal centro città, con accesso da via di Villa Spada. Il complesso immobiliare, denominato “Ex Motulesi”, è costituito da un’area di m² 2.900 con sovrastanti due fabbricati ad uso terziario, per complessivi 1.200 m² di SUL, oltre un’area di pertinenza e due piccoli manufatti consistenti in un locale tecnico ed un piccolo magazzino.

Dettagli

Tipologie immobile
Edificio cielo/terra
Funzioni ammesse
Direzionale
Superficie territoriale (m²)
2.900 m²
SLP Totale (m²)

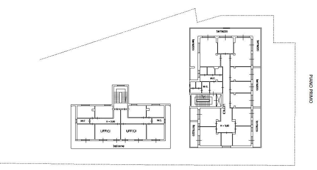
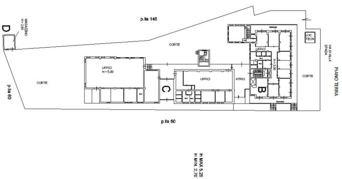
Il complesso immobiliare è costituito da due fabbricati, con categoria catastale D8, composti prevalentemente da locali ad uso ufficio e collegati tra loro mediante un corpo scala:

– fabbricato principale, realizzato nel 1965 si articola su cinque piani, di cui quattro fuori terra;

– fabbricato secondario, realizzato nel 1977 si articola su due piani, entrambi fuori terra.

Nel PRG di Roma il compendio è indicato a destinazione urbanistica «infrastrutture per la mobilità». Gli interventi di riqualificazione urbanistica e funzionale dovranno essere definiti attraverso uno strumento urbanistico attuativo (redazione del piano di assetto) di iniziativa pubblica, estesi all’intera area di Roma Smistamento. Nell’elaborazione dello strumento urbanistico attuativo saranno definite le destinazioni d’uso, con esclusione delle “grandi strutture di vendita” e di quelle produttive.

Il terreno è stato sottoposto a Verifica di Interesse Culturale ai sensi dell’ex art. 12 del D.Lgs 42/2004, poichè ricadente in “area di interesse archeologico – beni lineari con fascia di rispetto” all’interno del Piano Territoriale Paesistico Regionale, vincolo connesso alla via Salaria, ed ha avuto esito negativo.

Il complesso è situato lungo via Salaria, nel III Municipio di Roma, lungo la quale sono presenti complessi come il palazzo della sede di Sky Italia, il circolo “Villa Spada” del centro logistico della Guardia di Finanza, la sede dell’Istituto Poligrafico e Zecca dello Stato S.p.A. ed il Museo della Zecca di Roma, la sede legale di ENAV S.p.A. ed Invitalia S.p.A., il centro commerciale Salario Center, nonché edifici destinati a civile abitazione e fabbricati a servizio di attività ferroviarie (officine, depositi e magazzini). In particolare, in prossimità del complesso immobilare, ad una distanza di circa 200 m, è presente l’Aeroporto Roma Urbe e in posizione adiacente vi è un impianto sportivo di 24.600 m², comprendente campi di calcio ed un’area  dedicata alla pratica del tiro con l’arco.

Edificio 1 (superficie coperta di circa 495 mq)- piano seminterrato
locali magazzini, bagno, corte esterna ed accessori
Edificio 1 (superficie coperta di circa 495 mq) - piano terra
n. 9 locali ad uso ufficio, servizi ed accessori;
Edificio 1 (superficie coperta di circa 495 mq) - piano primo
n. 11 locali ad uso ufficio, servizi ed accessori
Edificio 1 (superficie coperta di circa 495 mq) - piano secondo
n. 12 locali ad uso ufficio, servizi ed accessori
Edificio 1 (superficie coperta di circa 495 mq) - piano terzo
n. 10 locali ad uso ufficio, servizi ed accessori
Edificio 2 (superficie coperta di circa 800 mq) - piano terra
suddiviso in due aree distinte, con n. 6 ufficio e n. 3 sale esposizione/riunioni oltre a servizi e accessori;
Edificio 2 (superficie coperta di circa 800 mq) - piano primo
n. 2 locali ad uso ufficio, servizi ed accessori a cui si accede mediante il corpo scala esterno realizzato nel cortile.

Il complesso è sito nel quartiere “Nuovo Salario”, nell’ambito dello scalo ferroviario di Roma-Smistamento, una zona periferica ricadente nel quadrante settentrionale del Comune di Roma, a circa 10 km dal centro città, con accesso da via di Villa Spada. Il complesso immobiliare, denominato “Ex Motulesi”, è costituito da un’area di m² 2.900 con sovrastanti due fabbricati ad uso terziario, per complessivi 1.200 m² di SUL, oltre un’area di pertinenza e due piccoli manufatti consistenti in un locale tecnico ed un piccolo magazzino.

Roma (RM)

Contatto

ICE - Italian Trade Agency

Richiedi informazioni

Pianta principale

Roma – Villa Spada “ex Motulesi” Pianta principale