Siete già iscritti? /

Sciacca (AG)- Ex Convento di San Domenico (porzione)

L’immobile, di proprietà demaniale, costituisce porzione del primo piano del più ampio complesso monastico denominato Convento di San Domenico, la cui costruzione risale al XVI secolo.
Il complesso monumentale di S. Domenico è situato nel centro storico di Sciacca, caratterizzato da strade medievali e edifici storici; l’immobile è facilmente accessibile, ben collegato ed è inserito in un contesto urbano di grande valore storico e architettonico.

indirizzo:
Piazza Mariano Rossi - 92019 Sciacca (AG)

Dettagli

Tipologie immobile
Edificio storico
Funzioni ammesse
Altre funzioni
Superficie territoriale (m²)
322 m²
SLP Totale (m²)
GLA totale
Anno di costruzione
XVI secolo
Stato manutentivo
Mediocre - Da valorizzare
Stato occupazionale
Libero

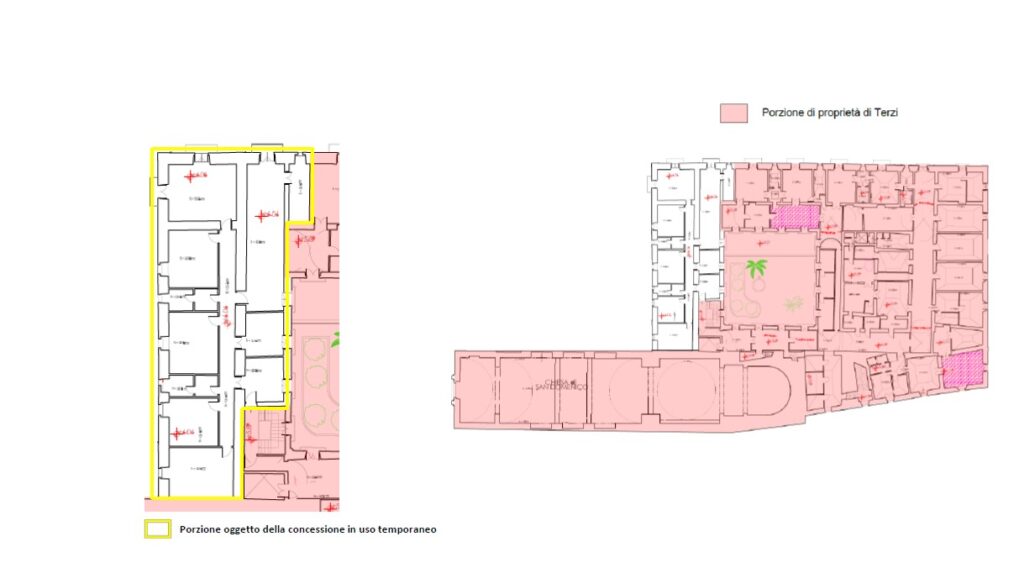
L’ immobile costituisce porzione del primo piano dell’ala d’oriente del più ampio complesso monastico denominato Convento di San Domenico, risalente al XVI secolo. Alla stessa si accede, a mezzo di una scala comune al limitrofo edificio Sacro, da piazza Mariano Rossi, in prossimità del monumento intitolato a Tommaso Fazello.

L’unità immobiliare, proposta in concessione temporanea, ha pianta regolare e si articola su 8 vani principali oltre disimpegno e 2 servizi igienici dotati di antibagno. L’immobile è dotato di affacci e vedute sia sulla piazza pubblica che all’interno dell’ex chiostro monastico.

Lo stato manutentivo generale è da considerarsi mediocre, rendendosi necessari interventi di manutenzione con particolare riferimento agli impianti tecnologici.

L’immobile è stato dichiarato di interesse storico artistico con D.D.S. n. 5315 del 13.02.2009 di vincolo ai sensi del D.Lgs. N. 42 del 22.01.2004.

Fatte salve le prescrizioni che l’Ente preposto alla tutela vorrà impartire e nei limiti prescritti dagli artt. 14-15-16 delle N.T.A. allegate al P.R.G. Comunale, sono ammessi i seguenti usi:

Attività socio culturali (eventi culturali, produzione artistica, concerti, spazi espositivi, workshop, etc.) e connessi servizi complementari, attività di promozione territoriale (turismo sostenibile, wellness, scoperta del territorio, etc.), in un’ottica di pubblica fruizione del bene e rigenerazione urbana.

L’immobile è ubicato nel centro storico di Sciacca. Il tessuto urbanistico di Sciacca risente dell’influenza islamica. Le mura furono ricostruite e ampliate più volte nel corso dei secoli. Tra il XV e il XVI secolo l’aristocrazia terriera costruì sontuosi palazzi, come ad esempio il palazzo dello Steripinto, eretto nel 1501.

Il Comune di Sciacca si affaccia a sud sul mare. Ad est si innalza il monte San Calogero (o Monte Kronio), con la sua riserva naturale e dalle cui falde scaturiscono le rinomate acque termali. Sciacca è facilmente raggiungibile, ben collegata tramite strade a scorrimento veloce e autostrade ai principali centri della Sicilia. Dista solo 27 km da Agrigento sede della famosa Valle dei Templi. L’aeroporto di Palermo dista 105 km.

L’immobile, di proprietà demaniale, costituisce porzione del primo piano del più ampio complesso monastico denominato Convento di San Domenico, la cui costruzione risale al XVI secolo.
Il complesso monumentale di S. Domenico è situato nel centro storico di Sciacca, caratterizzato da strade medievali e edifici storici; l’immobile è facilmente accessibile, ben collegato ed è inserito in un contesto urbano di grande valore storico e architettonico.

Questo immobile fa parte del progetto:

Agenzia del Demanio- bando Uso temporaneo

Piazza Mariano Rossi - 92019 Sciacca (AG)

Contatto

ICE - Italian Trade Agency

Richiedi informazioni

Pianta principale

Sciacca (AG)- Ex Convento di San Domenico (porzione) Pianta principale