Siete già iscritti? /

Sustinente (MN) – Villa Guerrieri Gonzaga – MASP (“Mantua Agriculture & Sustainability Project”)

MASP mira a creare un centro di formazione e innovazione in grado di migliorare la competitività e sostenibilità ambientale dell'agricoltura e delle aziende agroindustriali. L'area interessata, circa 13.000 m², fa parte della Villa Guerrieri Gonzaga, del XVII secolo, in provincia di Mantova, cuore della valle alimentare italiana del nord. Il progetto MASP prevede la conversione dell’edificio in un hub incentrato sul trasferimento di tecnologia tramite tre principali attività:
- corsi di master e post-diploma sull'agroalimentare e l'agricoltura di precisione;
- servizi alle imprese agricole e trasferimento tecnologico;
- promozione dell'eccellenza locale agroalimentare.

indirizzo:
Strada Provinciale, 482 - 46030 Sustinente (MN)

Dettagli

Tipologie immobile
Edificio storico, Villa, Edificio cielo/terra
Funzioni ammesse
Altre funzioni, Commerciale, Student House, Turistico ricettivo
Superficie territoriale (m²)
13.000 m²
SLP Totale (m²)
Anno di costruzione
17° secolo
Stato manutentivo
Da valorizzare
Stato occupazionale
Libero

Il nome Mantua Agriculture & Sustainability Project (MASP) da un lato sottolinea il forte legame con il territorio mantovano e le sue eccellenze in campo agricolo, dall’altro intende sottolineare l’importanza della competitività e della sostenibilità ambientale raggiungibile attraverso la formazione e il trasferimento tecnologico.
La sfida è quella di creare un centro di formazione e innovazione il cui obiettivo è quello di incrementare il benessere delle comunità locali del territorio Lombardo-Veneto-Emiliano, promuovendo la cultura dell’innovazione, della formazione permanente e della sostenibilità ambientale nelle PMI locali. Questi obiettivi sono raggiungibili attraverso la gestione e il coordinamento dei flussi di conoscenza e delle tecnologie tra università, istituti di ricerca e aziende locali.
Tenendo conto delle esigenze esposte nella sezione precedente, i core business del MASP includono:

  • master e corsi post-diploma orientati al lavoro su temi agricoli, agroalimentari e ambientali in particolare con un focus tecnologico ed economico. Questa scelta deriva dal desiderio di attirare sul territorio individui con un alto livello di istruzione. Persone pronte ad entrare nel mercato del lavoro e quindi nel tessuto economico della zona. Inoltre, l’offerta formativa, generalmente organizzata in 8 mesi di corso e 4 mesi di stage in aziende locali, permette:
    • al MASP di sviluppare una rete di relazioni con le aziende, al fine di favorire il trasferimento tecnologico;
    • agli insegnanti di svolgere le proprie ricerche ed eventualmente trascorrere del tempo presso altre istituzioni per attività di divulgazione e scambio scientifico;
    • alle imprese locali di relazionarsi con i giovani ad alto capitale umano;
    • agli studenti di mettere in pratica i concetti e gli insegnamenti affrontati in classe.
  • consulenza e trasferimento tecnologico alle imprese, in particolare nel settore agricolo;
  • promozione delle eccellenze locali agroalimentari.

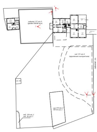
Analizziamo la composizione di Villa:

  • l’edificio principale di circa 1.120 m² è percorribile su 4 piani;
  • la struttura delle ex scuderie copre un’area di circa 380 m² che, divisa su due piani, offre 600-650 m² di superficie;
  • due edifici più piccoli per un totale di 140 m² da utilizzare come rimesse per veicoli e attrezzi.

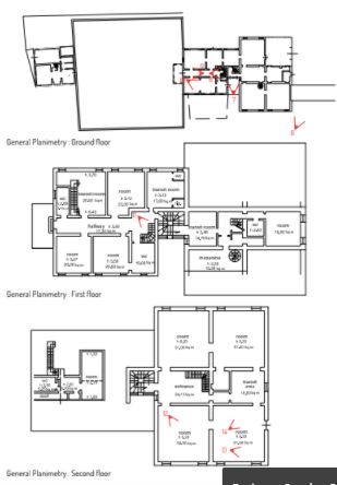
Le attività si svolgono nell’edificio principale:

  • didattica con corsi post-diploma e master post-laurea:
    • 6 aule di 50 m² ciascuna,
    • 1 biblioteca e sala studio di circa 250 m²
  • co-progettazione e consulenza per le aziende nelle seguenti stanze:
    • 1 laboratorio di contaminazione di circa 50 m²
    • 1 stanza dedicata a start-up e consulenza aziendale di circa 50 m²
    • 8 uffici di 15-20 m² ciascuno in media;
  • vendita e promozione di prodotti alimentari locali:
    • 1 punto dedicato alla vendita e alla promozione di prodotti agroalimentari di circa 50 m²
    • 1 magazzino di circa 35 m²

La struttura delle ex scuderie è dedicata a:

  • laboratori per l’insegnamento, l’analisi e la ricerca per un totale di circa 360 m²
  • pensione per visitatori e studenti per circa 360 m²

Il cortile pertinente è utilizzato per:

  • coltivazioni sperimentali, orto e serre moderne per circa 7000 m²
  • due parcheggi per circa 1400 m²

Sustinente è un comune di 2.000 abitanti della provincia di Mantova, situato nel mezzo del poligono creato dalle città di Mantova, Verona, Ferrara, e Cremona. Villa Gonzaga dista 10 minuti dalla strada che collega Verona a Modena e la stazione ferroviaria che collega Bologna con Verona e con il confine austriaco. In 15 minuti si raggiunge l’Autostrada A22 che collega Modena con Verona e con il confine austriaco, che interseca in 40 minuti l’A4 che connette Milano a Venezia.

Turismo / Studentato
360 mq
Istruzione
1200 mq
Commerciale
100 mq
Project Schedule
Social Environmental Impact
Decreto della Soprintendenza

MASP mira a creare un centro di formazione e innovazione in grado di migliorare la competitività e sostenibilità ambientale dell'agricoltura e delle aziende agroindustriali. L'area interessata, circa 13.000 m², fa parte della Villa Guerrieri Gonzaga, del XVII secolo, in provincia di Mantova, cuore della valle alimentare italiana del nord. Il progetto MASP prevede la conversione dell’edificio in un hub incentrato sul trasferimento di tecnologia tramite tre principali attività:
- corsi di master e post-diploma sull'agroalimentare e l'agricoltura di precisione;
- servizi alle imprese agricole e trasferimento tecnologico;
- promozione dell'eccellenza locale agroalimentare.

Questo immobile fa parte del progetto:

MIPIM 2021

Strada Provinciale, 482 - 46030 Sustinente (MN)

Contatto

ICE - Italian Trade Agency

Richiedi informazioni

Pianta principale

Sustinente (MN) – Villa Guerrieri Gonzaga – MASP (“Mantua Agriculture & Sustainability Project”) Pianta principale