Siete già iscritti? /

Trieste (TS) – Edificio Storico in Via Milano

Compendio immobiliare da cielo a terra situato nel centro storico di Trieste, nel quartiere di Borgo Teresiano, in un contesto caratterizzato dalla presenza di palazzi di notevole pregio storico-artistico per lo più di interesse culturale e vincolati.
Il Palazzo, risalente al 1907 rappresenta un interessante esempio di architettura eclettica, commissionato dalla nobile famiglia Ralli all’architetto Arturo Bachschmid. L'edificio, di proprietà della Regione autonoma Friuli Venezia Giulia dal 1966, è da allora sede degli uffici regionali inclusa la Corte dei Conti.

indirizzo:
Via Milano , 19 - 34132 Trieste (TS)

Dettagli

Tipologie immobile
Edificio storico
Funzioni ammesse
Altre funzioni
Superficie territoriale (m²)
4.595 m²
SLP Totale (m²)
Anno di costruzione
1907
Stato manutentivo
Ottimo
Stato occupazionale
Occupato da proprietà
Profilo di rischio

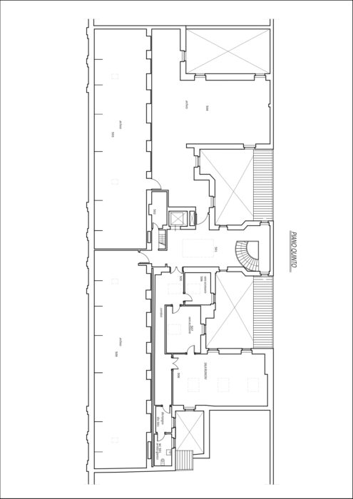
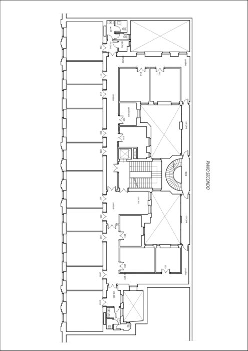
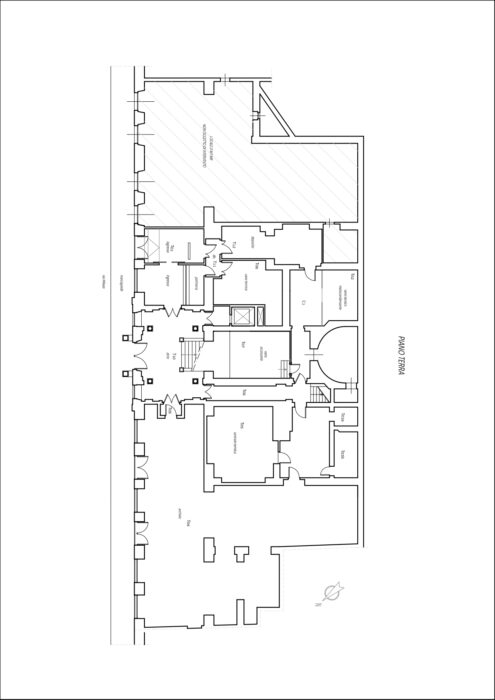
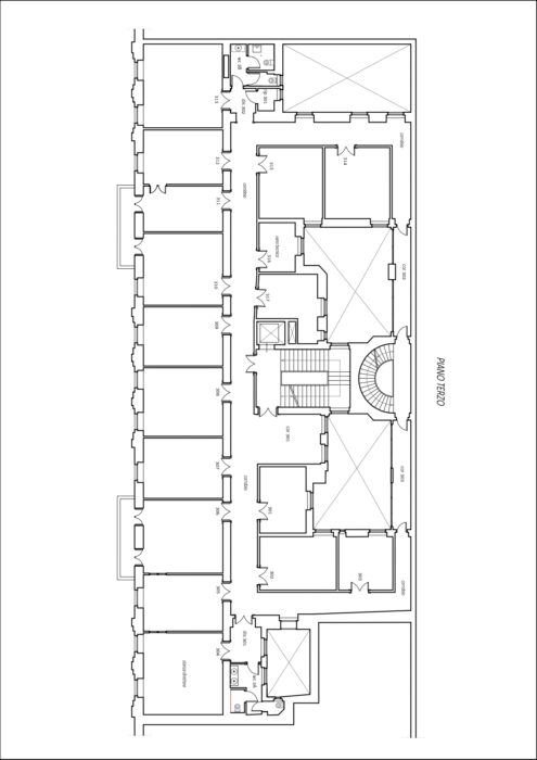
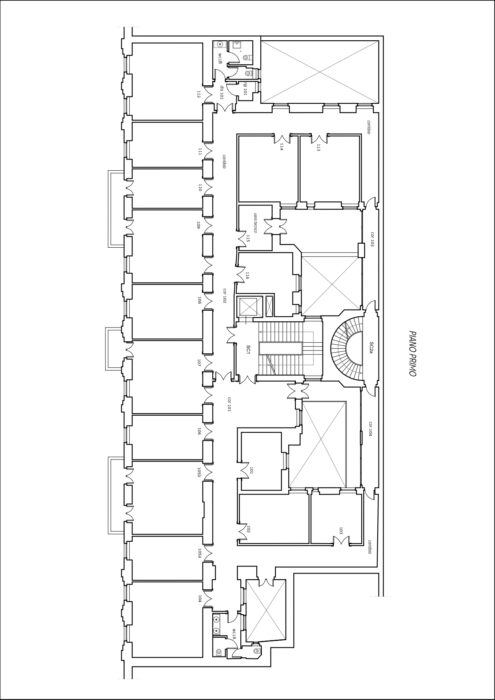
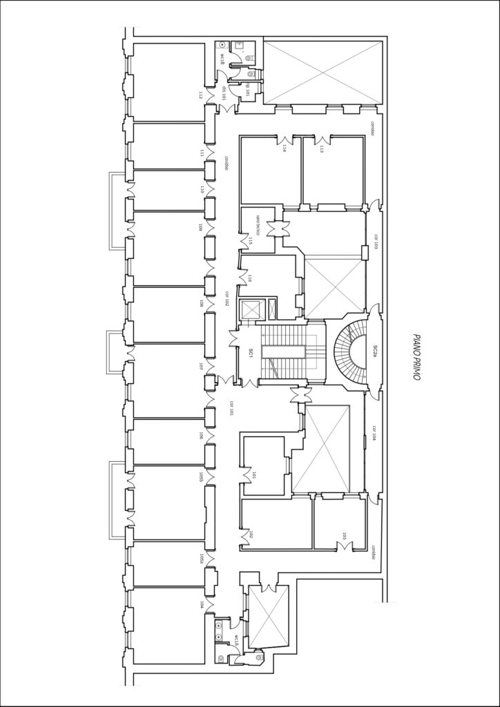
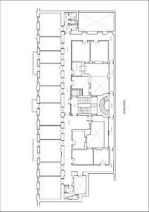
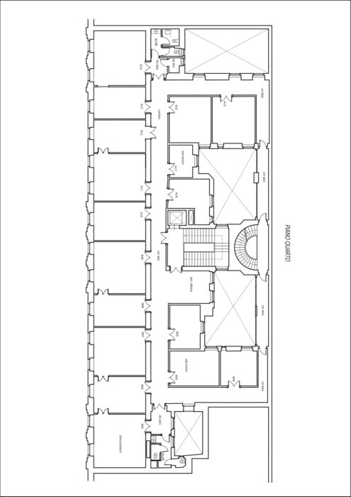
L’edificio, di proprietà della Regione autonoma Friuli Venezia Giulia, è stato edificato a pianta regolare su un’area di 830 m² e risulta articolato su sette piani fuori terra. Il Palazzo è suddiviso in due unità immobiliari con ingressi separati, ed è situato nel centro storico di Trieste, con accesso da Via Milano. Una porzione del piano terra ha destinazione d’uso commerciale (negozio), mentre la restante parte dell’edificio è adibita ad “uffici pubblici”, ancora oggi utilizzati quale sede istituzionale dalla Regione. L’immobile nel 2005 è stato dichiarato di interesse culturale dal Ministero per i Beni e le Attività Culturali. L’ingresso, sottolineato all’esterno dalla presenza di una coppia di colonne, permette l’accesso ad un atrio monumentale nel quale un’ampia scalinata conduce alla scala interna in pietra, protetta da una balaustra realizzata in ferro sbalzato. Il palazzo, servito da un impianto di elevazione, costituisce un interessante esempio di architettura eclettica e un importante elemento della piazza Vittorio Veneto, sulla quale in parte si affaccia, piazza dove sorgono edifici importanti per la storia architettonica ed urbanistica della città.

L’immobile è situato in zona centrale di Trieste (198.843 abitanti), capoluogo dell’omonima provincia e della Regione Friuli Venezia-Giulia, nel quartiere di Borgo Teresiano, costruito a partire dal XVIII secolo su iniziativa dell’Imperatore Carlo VI. L’edificio si trova nelle immediate vicinanze del Porto Vecchio, una delle aree di riqualificazione più significative della città, e della stazione FS “Trieste Centrale”, che dista 600 metri (7 minuti a piedi). La presenza nella zona dei più importanti monumenti e musei e delle principali attrazioni turistiche delle città, rendono l’immobile di notevole interesse; nei dintorni si trovano, oltre alla stazione ferroviaria, quella dei Pullman ed il Terminal croceristico, con numerose fermate del trasporto pubblico locale. Il casello “Trieste-Lisert” dell’autostrada A-4 (Torino-Milano-Trieste) e l’aeroporto internazionale di Trieste distano rispettivamente 25 e 35 km dalla città.

 

TERRA (deposito+commerciale)
618 m²
PRIMO (uffici)
802 m²
SECONDO (uffici)
702 m²
TERZO (uffici)
703 m²
QUARTO (uffici)
703 m²
QUINTO (deposito)
525 m²
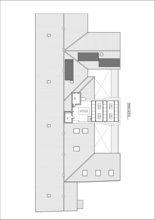
SESTO (locali tecnici)
30 m²

Compendio immobiliare da cielo a terra situato nel centro storico di Trieste, nel quartiere di Borgo Teresiano, in un contesto caratterizzato dalla presenza di palazzi di notevole pregio storico-artistico per lo più di interesse culturale e vincolati.
Il Palazzo, risalente al 1907 rappresenta un interessante esempio di architettura eclettica, commissionato dalla nobile famiglia Ralli all’architetto Arturo Bachschmid. L'edificio, di proprietà della Regione autonoma Friuli Venezia Giulia dal 1966, è da allora sede degli uffici regionali inclusa la Corte dei Conti.

Questo immobile fa parte del progetto:

MIPIM 2025

Procedure

Vendita della piena proprietà con bando pubblico

Via Milano , 19 - 34132 Trieste (TS)

Contatto

ICE - Italian Trade Agency

Richiedi informazioni

Pianta principale

Trieste (TS) – Edificio Storico in Via Milano Pianta principale