Siete già iscritti? /

Brescia – Ufficio dei Lavori Pubblici

Compendio immobiliare ad uso uffici situato in zona centrale della città di Brescia, sulla piazza Tebaldo Brusato, riqualificata urbanisticamente sul disegno delle piazze “alla francese”, con presenza di importanti essenze d’alto fusto lungo tutto il perimetro. Il fabbricato, realizzato nella tipologia a corte con piazzale interno adibito a parcheggi, risulta attualmente utilizzato dagli uffici provinciali dei Lavori Pubblici, e sarà liberato a breve. Il PRG consente l'insediamento di funzioni residenziali e turistico-ricettive.

indirizzo:
Piazza Tebaldo Brusato, 20 - 25121 Brescia (BS)

Dettagli

Funzioni ammesse
Direzionale
Superficie territoriale (m²)
1.342 m²
SLP Totale (m²)
Anno di costruzione
1911
Stato manutentivo
Buono
Stato occupazionale
Libero
Profilo di rischio

L’immobile, da cielo a terra, costituisce parte di un complesso di più edifici posizionati sulla piazza Tebaldo Brusato e risulta articolato su tre piani fuori terra con piano sottotetto. Il fabbricato presenta una conformazione a quadrilatero con un cortile interno adibito a parcheggio riservato su cui si affaccia un piccolo porticato. L’immobile è realizzato in muratura in latero-cemento tradizionale, dispone di riscaldamento autonomo, collegato alla rete del teleriscaldamento cittadino, è di un impianto di raffrescamento autonomo ad acqua fredda. Negli anni sono stati effettuati numerosi interventi di manutenzione nel compendio immobiliare, al fine di garantirne l’ottimale fruibilità e la buona conservazione. L’immobile non risulta essere vincolato ai sensi del D.Lgs. 42/2004. Nel PGT, l’immobile ricade nelle tipologie edilizie non residenziali, edifici speciali (2.4.1), le destinazioni d’uso sono quelle originarie; sono ammessi alcuni usi a carattere direzionale, ed è inoltre ammessa la conversione ad usi ricettivi o residenziali, a condizione che riguardi l’intero complesso ricompreso nell’unità edilizia.

Il compendio immobiliare, ad uso ufficio, è ubicato nel centro storico di Brescia (196.326 abitanti), capoluogo dell’omonima Provincia (1.265.077 abitanti), 2° comune della Regione Lombardia (10.002.165) per popolazione residente, parte di un agglomerato metropolitano che conta 672.822 abitanti. L’edificio si trova all’interno della perimetrazione della cinta muraria cittadina, alla base della collina del Cidneo su cui si erge il “Castello”, e si affaccia sulla piazza del “Vecchio Mercato”, caposaldo di Via Musei, filo conduttore di interconnessione con il Broletto e Piazza Duomo, passando attraverso importanti testimonianze d’epoca romana e longobarda. La zona in cui è ubicato l’immobile ben collegata con i mezzi pubblici, grazie alla presenza di autobus e della linea della metropolitana (fermata “Vittoria” a 950 mt dall’immobile), infrastruttura lunga 13 km che attraversa l’intera città da nord a sud, transitando per il centro storico; la Stazione FS dista invece 1,8 km a piedi dall’immobile. La città, distretto industriale tra i più importanti della Lombardia e dell’Italia, dista 100 km circa da Milano ed è ottimamente collegata al resto della Regione mediante la rete Autostradale e ferroviaria (Trenord linea R6).

piano terra
1.341,61 (di cui 293 mq di cortile Interno e 74,28 mq di porticato)
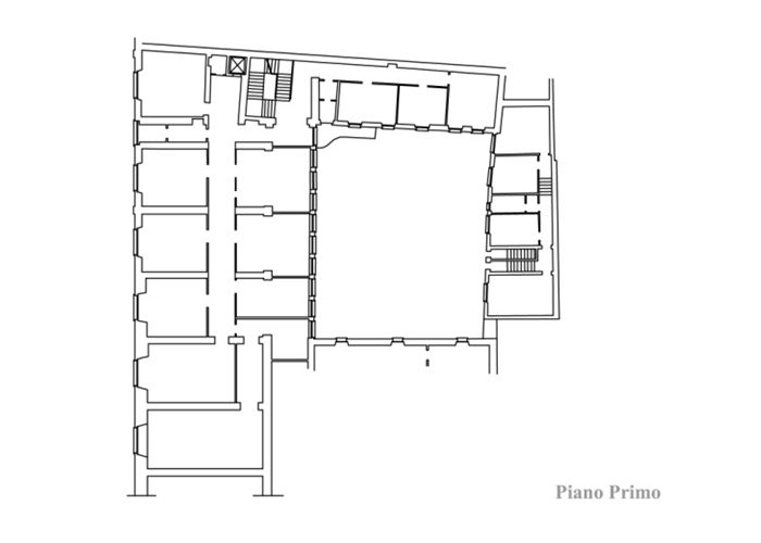
piano primo
1.089,27
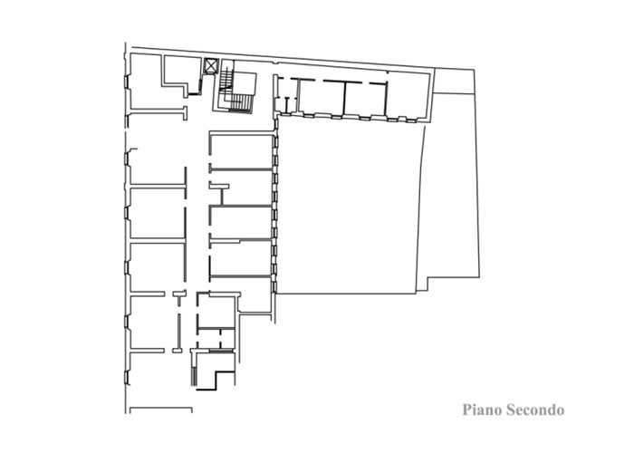
piano secondo
678,23
piano sottotetto
392,97

Compendio immobiliare ad uso uffici situato in zona centrale della città di Brescia, sulla piazza Tebaldo Brusato, riqualificata urbanisticamente sul disegno delle piazze “alla francese”, con presenza di importanti essenze d’alto fusto lungo tutto il perimetro. Il fabbricato, realizzato nella tipologia a corte con piazzale interno adibito a parcheggi, risulta attualmente utilizzato dagli uffici provinciali dei Lavori Pubblici, e sarà liberato a breve. Il PRG consente l'insediamento di funzioni residenziali e turistico-ricettive.

Procedure

Vedi dettagli contatto per manifestazioni di interesse e simili

Piazza Tebaldo Brusato, 20 - 25121 Brescia (BS)

Contatto

ICE - Italian Trade Agency

Richiedi informazioni

Pianta principale

Brescia – Ufficio dei Lavori Pubblici Pianta principale