Siete già iscritti? /

Varese – Ex Macello Civico – Progetto di rigenerazione urbana

Progetto di rigenerazione urbana dell'ex Macello civico, situato nella periferia orientale di Varese, nel quartiere di Belforte. L'intervento, di ampio respiro, sarà realizzato in un'area di oltre 3 ettari di proprietà comunale, attualmente in stato di abbandono, attraverso lo strumento del project financing; il progetto prevede la realizzazione di 90 alloggi in Housing sociale (in affitto calmierato o vendita convenzionata), con funzioni di supporto all'abitare, di interesse collettivo (sportivo e culturale) e commerciali, legate al quartiere, con ampi spazi a verde pubblico.

indirizzo:
Via Tonale, snc - 21100 Varese (VA)

Dettagli

Tipologie immobile
Aree in trasformazione
Funzioni ammesse
Residenziale, Student House
SLP Totale (m²)
Stato manutentivo
Da valorizzare
Profilo di rischio

Il progetto prevede il recupero di un complesso di edifici di pregio storico architettonico inseriti nel contesto urbano di Belforte, quartiere periferico della città di Varese, nel complesso noto come ex Macello civico, di proprietà comunale. L’intervento di rigenerazione urbana prevede la realizzazione di un nuovo compendio residenziale con servizi di carattere collettivo, legati all’abitare sociale, oltre funzioni commerciali che si ritiene possano generare un’elevata redditività, data la relativa scarsità di tali spazi nella zona. Il progetto di riqualificazione è articolato in quattro distinti ambiti:
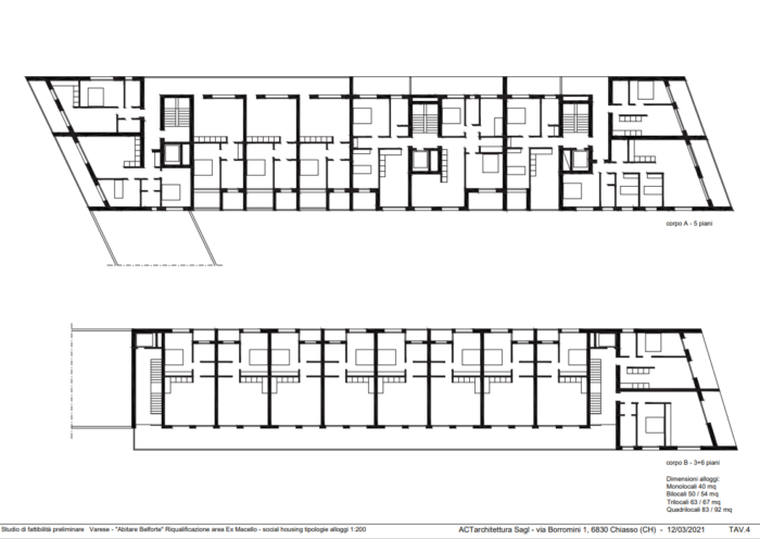
1. l’intervento di edilizia residenziale che prevede di realizzare 87/90 alloggi in Social Housing (ERS o Edilizia Residenziale Sociale) che saranno valorizzati per il 50% in locazione a canone moderato e per il 50% in vendita convenzionata; i fabbricati saranno edificati nel settore ad est dell’area, in luogo dei capannoni che verranno demoliti; le tipologie abitative previste dal progetto sono: monolocali (8), bilocali (40), trilocali (31/34), quadrilocali (8);

2. la Nuova Piazza Gigli situata nella parte centrale dell’area, baricentro del comparto e porta d’ingresso dell’intero intervento, che includerà anche i Servizi Integrativi all’Abitare sociale (SIA), i Servizi Locali Urbani (SLU) e le Funzioni Commerciali connesse alla Residenza (FCR) di pertinenza dell’intervento di Social Housing;

3. la completa ri-funzionalizzazione dell’ex Macello nel settore a ovest (edifici storici esistenti) incentrata sul tema portante del cibo, che raccoglie l’eredità storica della struttura ed esalta il rapporto di integrazione ed interscambio tra preparazione, somministrazione e recupero delle eccedenze alimentari;

4. il parco pubblico e ciclopedonale che connetterà il comparto dell’ex Macello con il Rione di Giubiano ed il centro cittadino, grazie ad un collegamento di “mobilità leggera”, che verrà realizzato oltre il tracciato ferroviario esistente.

La gestione del comparto abitativo, sarà quella tipica degli interventi di social housing, e sarà affidata dal comune al soggetto attuatore dell’intervento. Per la parte dei servizi di interesse pubblico, che saranno localizzati nella parte storica e ri-funzionalizzata dell’ex Macello, il modello gestionale sarà quello dell’utilizzo temporaneo mediante concessione pluriennale. Completerà l’intervento la realizzazione di servizi sportivi, sociali e culturali – aggregativi.

L’area interessata dall’intervento di rigenerazione urbana è situata nel quadrante periferico orientale di Varese (80.799 abitanti), capoluogo dell’omonima Provincia (890.090 abitanti), ottava città della Regione Lombardia (10.008.349 abitanti) per popolazione residente. Varese, chiamata anche Città Giardino per i numerosi parchi che si trovano sul suo territorio, fa parte del Parco Regionale Campo dei Fiori e della Rete delle Città Strategiche (RECS). Città d’arte e di cultura, è ricca di Ville e Castelli, molti edificati dalla famiglia Borromeo e da altre casate aristocratiche che qui, nel corso dei secoli, si sono insediate. Il suo territorio è attraversato da numerosi corsi d’acqua e si affaccia sul Lago di Varese. Il compendio dell’ex Macello civico è situato lungo Via Tonale, strada secondaria parallela a Via Belforte, importante arteria viaria che attraversa la città, da ovest verso est, ed è collegata con la Tangenziale est di Varese (SS 342 Briantea), e con l’infrastruttura autostradale nazionale.
Le stazioni ferroviarie, compresa quella internazionale per la Svizzera (anch’esse in fase di riqualificazione), distano 5 minuti a piedi dalla zona, mentre il centro storico della città (Piazza Beccaria) si trova ad 1,7 km dall’immobile (20 minuti a piedi). L’accessibilità veicolare privata risulta piuttosto agevole, con buona dotazione di mezzi di trasporto pubblico. L’autostrada A-8 (Milano-Varese) è situata a 10 km dall’immobile, e collega la città con il capoluogo lombardo in 50 minuti. L’Aeroporto internazionale di Milano-Malpensa (2 scalo aeroportuale d’Italia per traffico passeggieri) dista 39 km dalla città.

 

Progetto "Varese Social District - Viva Vivere Varese - Abitare Belfiore"

Progetto di rigenerazione urbana dell'ex Macello civico, situato nella periferia orientale di Varese, nel quartiere di Belforte. L'intervento, di ampio respiro, sarà realizzato in un'area di oltre 3 ettari di proprietà comunale, attualmente in stato di abbandono, attraverso lo strumento del project financing; il progetto prevede la realizzazione di 90 alloggi in Housing sociale (in affitto calmierato o vendita convenzionata), con funzioni di supporto all'abitare, di interesse collettivo (sportivo e culturale) e commerciali, legate al quartiere, con ampi spazi a verde pubblico.

Questo immobile fa parte del progetto:

MIPIM 2023

Procedure

Vedi dettagli contatto per manifestazioni di interesse e simili

Via Tonale, snc - 21100 Varese (VA)

Contatto

ICE - Italian Trade Agency

Richiedi informazioni