Siete già iscritti? /

Todi (Pg) – Locali in Palazzo dei Priori (ex sede Banca Mps Spa)

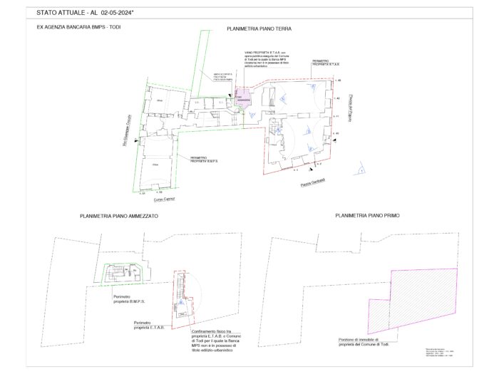
Porzione immobiliare situata nel centro storico di Todi, in provincia di Perugia. L'immobile occupa una porzione del piano terra dello storico "Palazzo dei Priori", ed ha ospitato una filiale della Banca "Monte dei Paschi di Siena S.p.A". L'immobile sarà disponibile in locazione, la cui assegnazione avverrà a seguito di bando pubblico.

indirizzo:
Piazza del Popolo - 06059 Todi (PG)

Dettagli

Tipologie immobile
Edificio storico
Funzioni ammesse
Altre funzioni, Commerciale, Direzionale, Sport, tempo libero, eventi, Turistico ricettivo
Superficie territoriale (m²)
280 m²
SLP Totale (m²)
GLA totale
Contratti e vincoli

No contratti di locazione in essere.

Anno di costruzione
Secolo XIII
Stato manutentivo
Buono
Stato occupazionale
Libero
Profilo di rischio

L’immobile, occupa il piano terra dello stabile, mentre al piano ammezzato è presente un servizio igienico. Risulta essere vincolato ai sensi del Codice dei Beni Culturali e del Paesaggio, ex D.lgs 42/2004.  I locali confinano con le proprietà comunali del Palazzo dei Priori. E’ possibile procedere con il cambio di destinazione d’uso per diverse attività, previa acquisizione del parere vincolante della Soprintendenza per l’Umbria.

Il complesso immobiliare si trova nella piazza principale di Todi (15.588 abitanti), in provincia di Perugia. La città si trova al centro dell’Umbria in una posizione strategica per visitare i comuni di Orvieto, Narni, Terni, Spoleto, Perugia e Assisi. La cittadina umbra è facilmente raggiungibile con il mezzo privato percorrendo l’autostrada A-1 (Roma-Firenze) fino al casello di “Orte”, per poi proseguire lungo la SS-675 e la SS-3bis. La Stazione FS di Terni, dista 52 km dalla zona (35-45 minuti in auto), mentre l’aeroporto internazionale di Perugia “San Francesco d’Assisi”, si trova a 50 km dalla zona (40-50 minuti in auto).

 

piano terra
265 m²
piano ammezzato
15 m²
Avviso per manifestazione di interesse
Altri documenti PRG
Altri documenti PRG
Inquadramento
Pianta centro Storcio

Porzione immobiliare situata nel centro storico di Todi, in provincia di Perugia. L'immobile occupa una porzione del piano terra dello storico "Palazzo dei Priori", ed ha ospitato una filiale della Banca "Monte dei Paschi di Siena S.p.A". L'immobile sarà disponibile in locazione, la cui assegnazione avverrà a seguito di bando pubblico.

Piazza del Popolo - 06059 Todi (PG)

Contatto

ICE - Italian Trade Agency

Richiedi informazioni

Pianta principale

Todi (Pg) – Locali in Palazzo dei Priori (ex sede Banca Mps Spa) Pianta principale